授权公布号:CN209481227U
一种简易废酸液处理池
有效
申请
2018-12-28
申请公布
1970-01-01
授权
2019-10-11
预估到期
2028-12-28
| 申请号 | CN201822222801.9 |
| 申请日 | 2018-12-28 |
| 授权公布号 | CN209481227U |
| 授权公告日 | 2019-10-11 |
| 分类号 | C02F1/14;B01D53/40;B01D53/79;C02F103/16 |
| 分类 | 水、废水、污水或污泥的处理; |
| 申请人名称 | 江苏大力神科技股份有限公司 |
| 申请人地址 | 江苏省镇江市丹阳市开发区机场路95号 |
专利法律状态
2019-10-11
授权
状态信息
授权
摘要
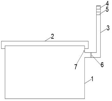
一种简易废酸液处理池,包含有水泥池(1)、玻璃盖(2)和喷淋塔(3),所述的玻璃盖(2)覆盖在水泥池(1)上,将水泥池(1)内部与外界空气隔绝开来;其特征在于:所述的喷淋塔(3)底部连接在水泥池(1)的出气口,塔的上部设置有碱液喷淋装置(5),塔顶还设置有抽风机(4)。本实用新型结构简单,投资小;通过太阳能将酸液蒸发成酸雾,再通过喷淋塔(3)喷淋碱液将酸雾中和掉,有效的避免了酸排放带来的环境污染。


