授权公布号:CN211347990U
一种镀锌生产线收卷段在线监测装置
有效
申请
2019-12-12
申请公布
1970-01-01
授权
2020-08-25
预估到期
2029-12-12
| 申请号 | CN201922214339.2 |
| 申请日 | 2019-12-12 |
| 授权公布号 | CN211347990U |
| 授权公告日 | 2020-08-25 |
| 分类号 | G01N21/94 |
| 分类 | 测量;测试; |
| 申请人名称 | 江苏大力神科技股份有限公司 |
| 申请人地址 | 江苏省镇江市丹阳市开发区机场路95号 |
专利法律状态
2020-08-25
授权
状态信息
授权
摘要
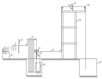
一种镀锌生产线收卷段在线监测装置,包含有摄像头(1)、支架(2)、控制器(3)、显示屏(4)和报警器(5);所述的控制器(3)、显示屏(4)和报警器(5)都设置在收卷操作台(6)上;所述的摄像头(1)、显示屏(4)和报警器(5)都通过电缆连接在控制器(3)上;其特征在于:所述的摄像头(1)共有两组,其中一组设置在塔台(13)上的转向辊(12)后,另一组设置在钝化烘箱(10)上方。本实用新型通过设置在塔台(13)上转向辊(12)后的摄像头(1)和钝化烘箱(10)上方的摄像头(1)来检测钢带(11)上是否黏附有锌渣等杂质和板面是否有凹坑;有效的避免鼓包废卷的产生。


