授权公布号:CN106247509B
一体式冷水机组
有效
申请
2016-09-23
申请公布
2016-12-21
授权
2021-10-15
预估到期
2036-09-23
| 申请号 | CN201610841856.0 |
| 申请日 | 2016-09-23 |
| 申请公布号 | CN106247509A |
| 申请公布日 | 2016-12-21 |
| 授权公布号 | CN106247509B |
| 授权公告日 | 2021-10-15 |
| 分类号 | F24F5/00;F24F13/30;F24F11/89;F25B43/00 |
| 分类 | 供热;炉灶;通风; |
| 申请人名称 | 昆山台佳机电有限公司 |
| 申请人地址 | 江苏省苏州市昆山市玉山镇城北萧林路民营科技工业园民营中路12号 |
专利法律状态
2023-09-15
专利权质押合同登记的生效、变更及注销
状态信息
专利权质押合同登记的生效;IPC(主分类):F24F5/00;专利号:ZL2016108418560;登记号:Y2023980054178;登记生效日:20230829;出质人:昆山台佳机电有限公司;质权人:苏州信托有限公司;发明名称:一体式冷水机组;申请日:20160923;授权公告日:20211015
2021-10-15
授权
状态信息
授权
2017-01-18
实质审查的生效
状态信息
实质审查的生效;IPC(主分类):F24F5/00;申请日:20160923
2016-12-21
公布
状态信息
公布
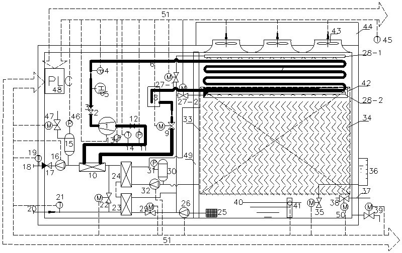
摘要
本发明公开了一种一体式冷水机组,包含主机段和冷却段,主机段包括:制冷剂回路、冷冻水回路、乙二醇冷回收回路和蒸发冷却冷回收回路;冷却段包括:冷却水回路。该一体式冷水机组利用水喷淋蒸发冷却技术,并结合蒸发冷却冷水机组的特点,引入了水换热盘管和乙二醇换热盘,用于过渡季节和冬季利用自然冷源。同时,为了在中国北方地区应用,设计了风、沙分离的进风装置,极大降低了风沙影响。即,该一体式冷水机组可以采用多种模式充分利用自然冷源,适用于全年制冷的应用,在夏季和其他季节都能得到较高的能效,为数据机房的冷却等应用提供更好的经济性。


