授权公布号:CN210884418U
一种快速联动调节式压纸机构及自动覆面机
有效
申请
2019-11-19
申请公布
1970-01-01
授权
2020-06-30
预估到期
2029-11-19
| 申请号 | CN201921999541.4 |
| 申请日 | 2019-11-19 |
| 授权公布号 | CN210884418U |
| 授权公告日 | 2020-06-30 |
| 分类号 | B65H5/38;B32B38/00 |
| 分类 | 输送;包装;贮存;搬运薄的或细丝状材料; |
| 申请人名称 | 上海德拉根印刷机械有限公司 |
| 申请人地址 | 上海市青浦区朱家角镇朱枫公路1220号 |
专利法律状态
2020-06-30
授权
状态信息
授权
摘要
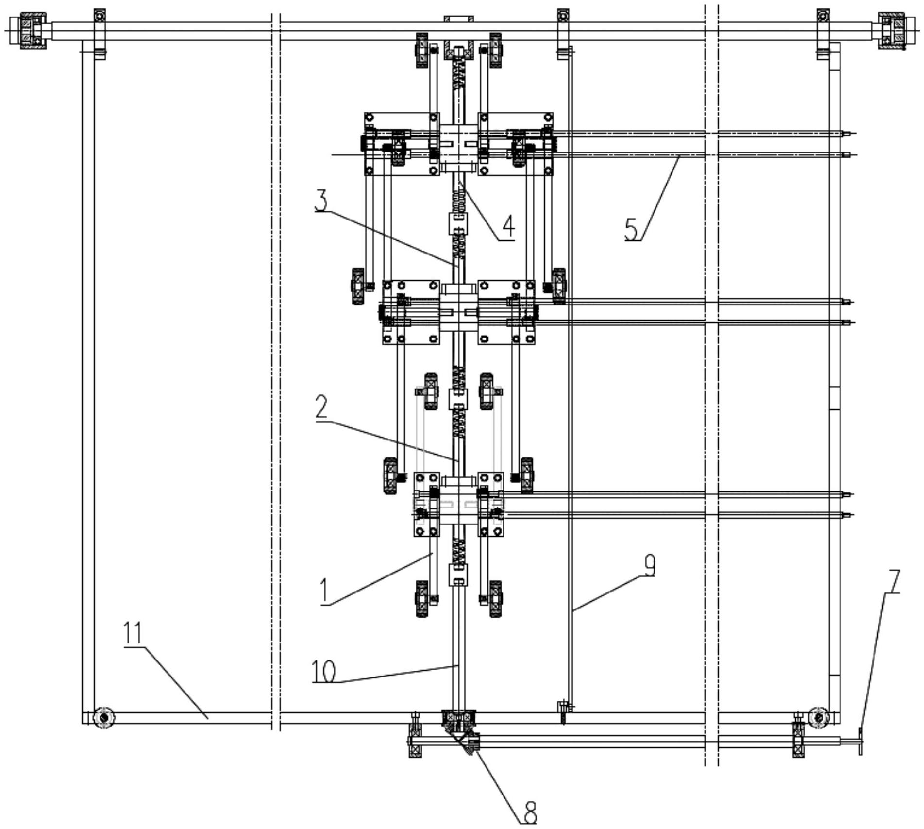
本实用新型公开了一种快速联动调节式压纸机构及自动覆面机,要解决的是现有手动压纸轮调节机构的缺点。本产品包括压纸轮组件、调节组件和框架,所述框架上安装有手轮和标尺并且手轮通过伞齿轮组件与光轴相连,光轴的一端与第一左滚珠组件的一端相连,第一左滚珠组件、右滚珠组件、第二左滚珠组件和框架依次相连,压纸轮组件分别与第一左滚珠组件和第二左滚珠组件相连,调节组件的两端分别与压纸轮组件和框架相固定,第一左滚珠组件、右滚珠组件和第二左滚珠组件均包括滚珠螺帽和滚珠螺杆,第一左滚珠组件和第二左滚珠组件中滚珠螺杆的螺纹方向相反。本产品可实现根据不同幅面纸张快速调整压纸轮组件的位置,以适应各种纸张要求,使用安全性好。


