授权公布号:CN217792056U
柜体
有效
申请
2022-06-08
申请公布
1970-01-01
授权
2022-11-15
预估到期
2032-06-08
| 申请号 | CN202221425594.7 |
| 申请日 | 2022-06-08 |
| 授权公布号 | CN217792056U |
| 授权公告日 | 2022-11-15 |
| 分类号 | A47B81/00;A47B95/00;A47B96/02 |
| 分类 | 家具;家庭用的物品或设备;咖啡磨;香料磨;一般吸尘器; |
| 申请人名称 | 宁波柏厨集成厨房有限公司 |
| 申请人地址 | 浙江省宁波杭州湾新区滨海六路28号 |
专利法律状态
2022-11-15
授权
状态信息
授权
摘要
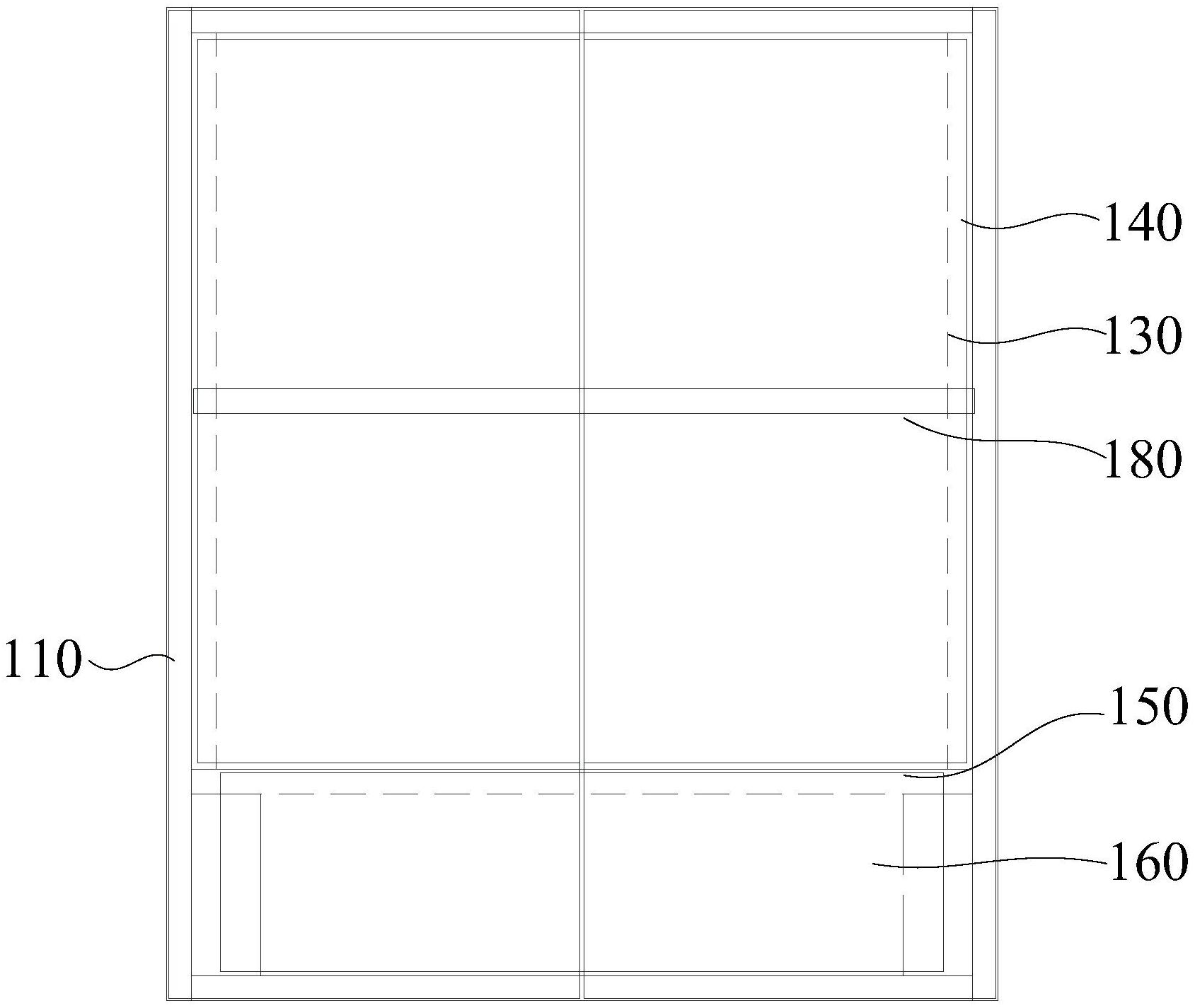
本实用新型涉及的是一种家具的技术,具体是一种柜体,所述柜体设置有柜体本体、第一板体、第二板体和密封件,其中,柜体本体内形成有容纳空间,第一板体铰接于柜体本体的端面,以封闭容纳空间,第二板体铰接于柜体本体的侧面,以将容纳空间分隔出两个容纳层,在第二板体和柜体本体之间的容纳层中可容纳煤气表或集分水器,以隐藏煤气表或集分水器,保证柜体容纳空间的美观性。并且第二板体和第一板体之间的容纳层中可存放物品,提高柜体的储物空间,并且通过密封件连接于第二板体,以对第二板体和柜体本体之间的容纳层进行密封,避免虫鼠进入其中,造成隐患。


