授权公布号:CN212015527U
一种用于清洗机的餐具传送装置
有效
申请
2019-10-25
申请公布
1970-01-01
授权
2020-11-27
预估到期
2029-10-25
| 申请号 | CN201921814630.7 |
| 申请日 | 2019-10-25 |
| 授权公布号 | CN212015527U |
| 授权公告日 | 2020-11-27 |
| 分类号 | A47L15/24;A47L15/42 |
| 分类 | 家具;家庭用的物品或设备;咖啡磨;香料磨;一般吸尘器; |
| 申请人名称 | 江苏欧倍力洗碗设备制造有限公司 |
| 申请人地址 | 江苏省泰州市农业开发区中菱路6号 |
专利法律状态
2020-11-27
授权
状态信息
授权
摘要
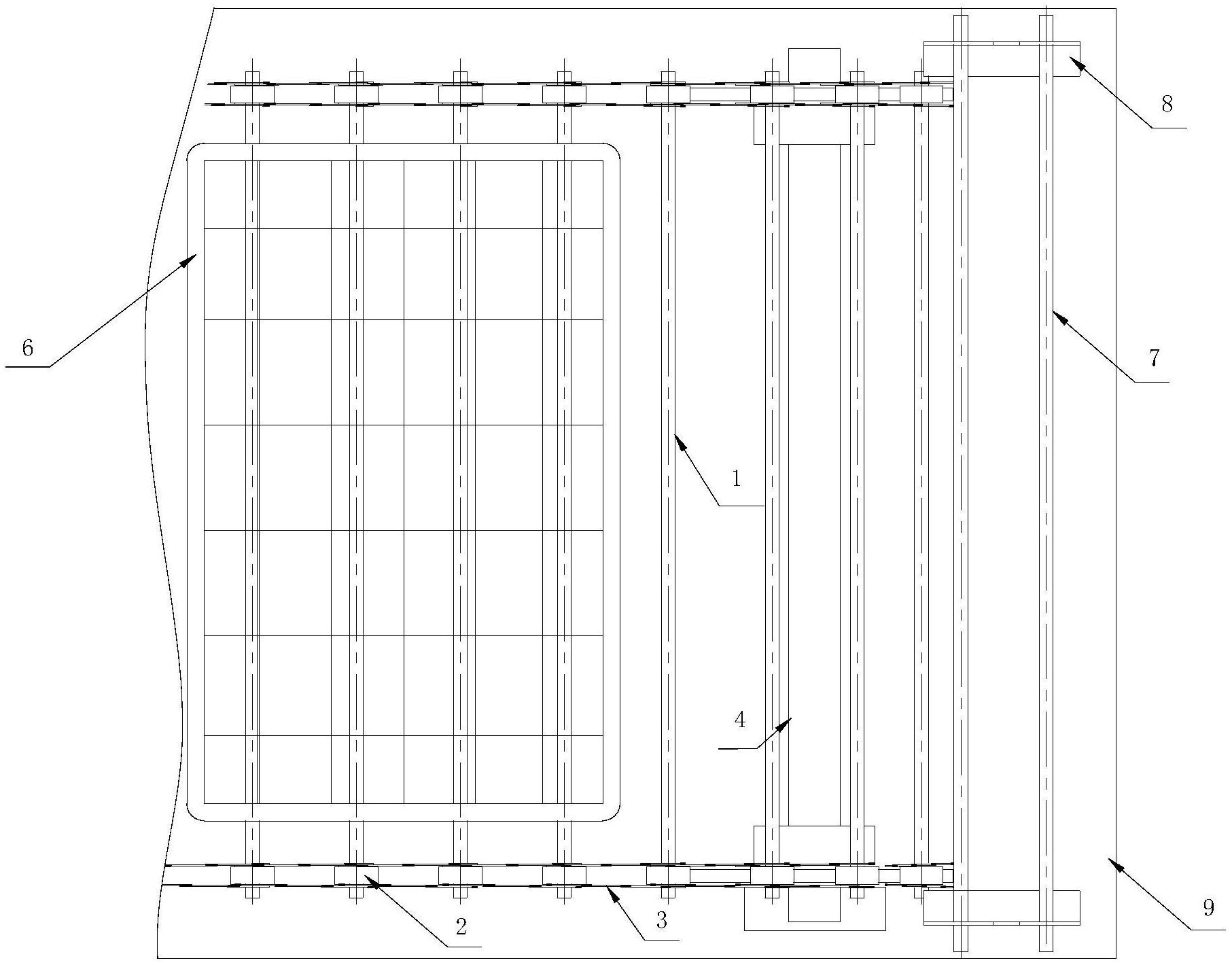
本实用新型公开一种用于清洗机的餐具传送装置,包括机架、传送组件、动力系统和传动组件,所述传送组件置于所述机架上,传送组件两端部分别由链片连接,传动组件位于传送组件一端或两端,传动组件设有传动齿轮,由动力系统控制通过传动齿轮驱动链片带动传送组件前行或后退,餐具清洗框置于所述传送组件上,随传送组件运行。本发明方案针对现有餐具喷淋式一体机中餐具传送系统存在的缺陷进行完全的创新改造,将原始的勾爪传送,改造成了平稳的传送带传送,通过齿轮平稳驱动,使餐具清洗框在传送杆上平稳传送,大大提高了传送稳定性、传送效率,而且传送过程中通过调节传送电机的转速即可调整传动速度,操作方便,故障率大大降低。


