授权公布号:CN220269390U
一种含液体类有机工艺废气净化处理工艺系统
有效
申请
2023-07-27
申请公布
1970-01-01
授权
2023-12-29
预估到期
2033-07-27
| 申请号 | CN202321994813.8 |
| 申请日 | 2023-07-27 |
| 授权公布号 | CN220269390U |
| 授权公告日 | 2023-12-29 |
| 分类号 | F23G7/04;F23G7/06;F23G5/44;F23G5/46;F23G5/50 |
| 分类 | 燃烧设备;燃烧方法; |
| 申请人名称 | 天华化工机械及自动化研究设计院有限公司 |
| 申请人地址 | 甘肃省兰州市西固区合水北路3号 |
专利法律状态
2023-12-29
授权
状态信息
授权
摘要
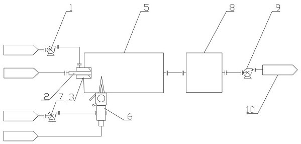
本实用新型涉及废气处理环保技术领域,是一种含液体类有机工艺废气净化处理工艺系统,包括雾化系统、焚烧系统、余热回收系统、风机负压系统和烟气排放系统;雾化系统的输出端设有焚烧系统,焚烧系统的输出端设有余热回收系统,余热回收系统的输出端设有风机负压系统;本实用新型通过设置雾化系统,将雾化气中夹带液体进行吹扫离散形成小雾滴进入到焚烧系统,使废气及其夹带液中的VOCs组分在焚烧炉中氧化焚烧,由此对含气液夹带量较高、且富含具有强挥发、有特殊气味、有刺激性、有毒的挥发性有机物气体的环保净化处理,解决了现有驰放气工艺单一存在一定局限性的问题,提高了气体塔驰放气的资源利用效率。


