授权公布号:CN216111259U
一种具有断液与液击保护装置的单螺杆压缩机
有效
申请
2021-07-06
申请公布
1970-01-01
授权
2022-03-22
预估到期
2031-07-06
| 申请号 | CN202121531359.3 |
| 申请日 | 2021-07-06 |
| 授权公布号 | CN216111259U |
| 授权公告日 | 2022-03-22 |
| 分类号 | F04C18/107;F04C28/06;F04C28/28;F04C29/02;F04C29/04 |
| 分类 | 液体变容式机械;液体泵或弹性流体泵; |
| 申请人名称 | 广东正力精密机械有限公司 |
| 申请人地址 | 广东省佛山市顺德区高新区(容桂)华天路10号 |
专利法律状态
2022-03-22
授权
状态信息
授权
摘要
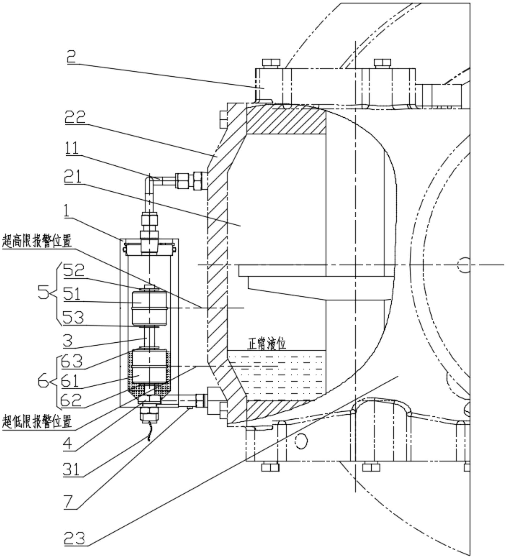
本实用新型公开了一种具有断液与液击保护装置的单螺杆压缩机,包括筒体、压缩机、液位检测机构,所述压缩机的壳体的内部设置有储液腔,所述筒体设置在压缩机上,并与所述储液腔连通,所述液位检测机构设置在所述筒体的内腔,所述液位检测机构用于检测所述储液腔内的超高限液位与超低限液位,并转化成信号输出,以控制所述压缩机停止运行或禁止启动。本实用新型可对压缩机进行断液保护或液击保护,防止压缩机损坏。


