授权公布号:CN213146733U
与建筑结合的相变蓄能太阳能热泵供暖系统
有效
申请
2020-09-16
申请公布
1970-01-01
授权
2021-05-07
预估到期
2030-09-16
| 申请号 | CN202022031067.5 |
| 申请日 | 2020-09-16 |
| 授权公布号 | CN213146733U |
| 授权公告日 | 2021-05-07 |
| 分类号 | F28D20/02;F24S20/60;F24S80/50;F24S20/40;F24D15/04 |
| 分类 | 一般热交换; |
| 申请人名称 | 北京华业阳光新能源有限公司 |
| 申请人地址 | 北京市海淀区中关村智造大街A座305 |
专利法律状态
2021-05-07
授权
状态信息
授权
摘要
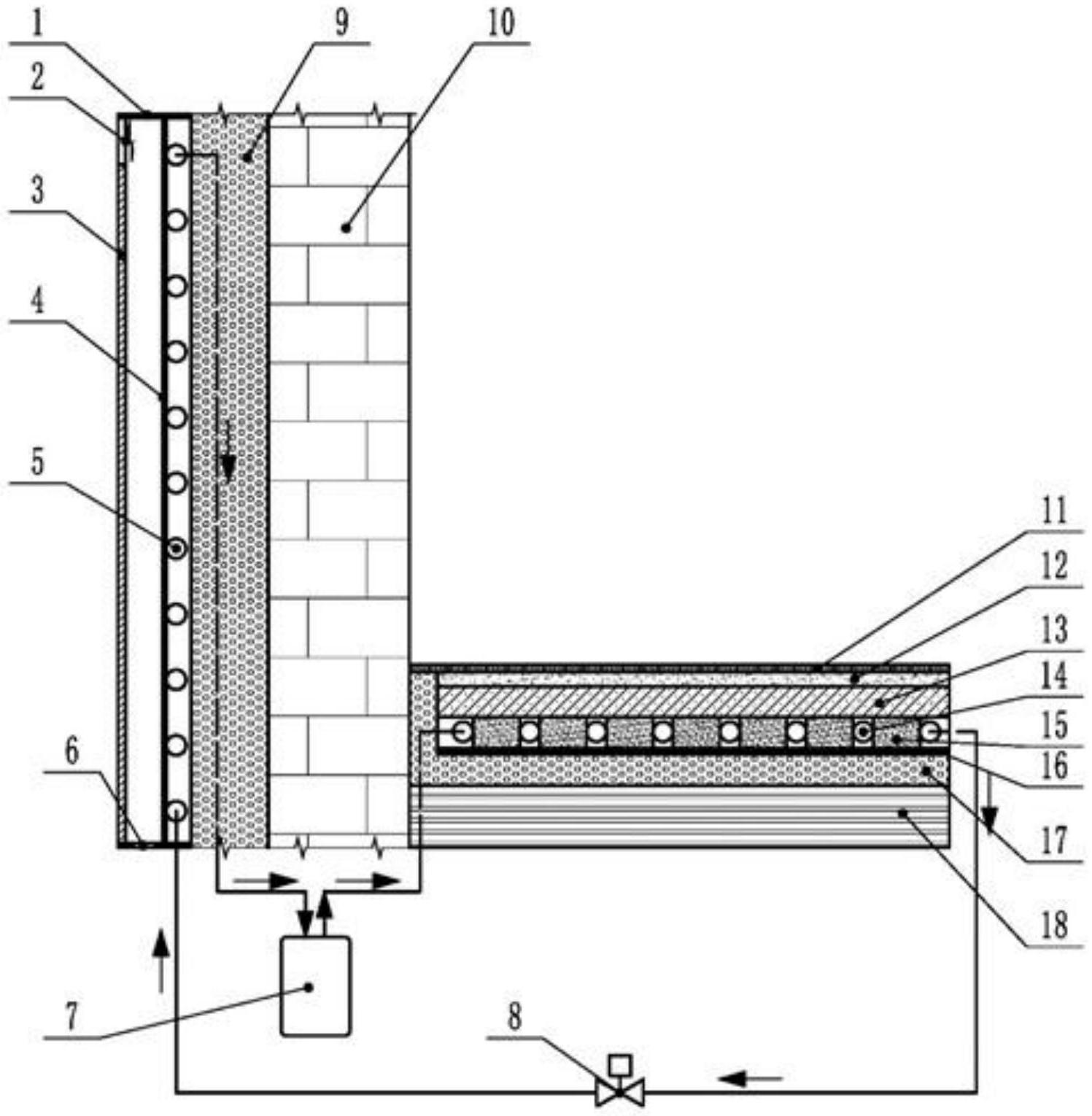
本实用新型是一种与建筑结合的相变蓄能太阳能热泵供暖系统,其特征在于:集热器边框的外侧设置透明玻璃盖板,其内侧透过建筑外墙保温层与建筑墙体固定连接,所述透明玻璃盖板上设置风机,所述集热器边框的底端设置进风口,所述集热器边框内设置太阳能吸热体,所述太阳能吸热体与蒸发器盘管固定,所述蒸发器盘管通过管路与热泵冷凝器盘管连通,所述管路上设置压缩机及膨胀阀,所述热泵冷凝器盘管盘绕铺设于若干个相变蓄热材料块之间的间隙内,供所述相变蓄热材料块蓄热,本实用新型是太阳能集热器、空气源热泵及建筑一体化,优化占地空间,降低成本,同时通过大面积散热,降低供热温度,提高热泵效率。


