授权公布号:CN205166227U
一种助焊剂集中供液系统
有效
申请
2015-11-13
申请公布
1970-01-01
授权
2016-04-20
预估到期
2025-11-13
| 申请号 | CN201520907151.5 |
| 申请日 | 2015-11-13 |
| 授权公布号 | CN205166227U |
| 授权公告日 | 2016-04-20 |
| 分类号 | B23K37/00 |
| 分类 | 机床;不包含在其他类目中的金属加工; |
| 申请人名称 | 浙江新锐焊接科技股份有限公司 |
| 申请人地址 | 浙江省绍兴市嵊州市三界镇工业集聚区 |
专利法律状态
2016-04-20
授权
状态信息
授权
摘要
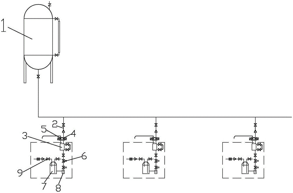
本实用新型涉及一种助焊剂集中供液系统,包括高位槽,高位槽连接有若干个助焊剂排放系统,若干个助焊剂排放系统为并列式连接;助焊剂排放系统包括与高位槽连接的中间管路,中间管路连接有过渡罐,过渡罐上安装有气体排空阀和进液阀,过渡罐的底部安装有出液阀,出液阀连接有储液罐,储液罐和过渡罐之间连接有控制系统,且储液罐连接有放液阀,放液阀与焊枪连接。本实用新型通过控制系统控制助焊剂的进液和出液,并通过过渡罐和储液罐保证助焊剂的集中供液和连续供液,提高了焊接效率,并保证了焊接质量。


