授权公布号:CN217807147U
一种木地板翻板装置
有效
申请
2022-07-29
申请公布
1970-01-01
授权
2022-11-15
预估到期
2032-07-29
| 申请号 | CN202221985248.4 |
| 申请日 | 2022-07-29 |
| 授权公布号 | CN217807147U |
| 授权公告日 | 2022-11-15 |
| 分类号 | B65G47/252 |
| 分类 | 输送;包装;贮存;搬运薄的或细丝状材料; |
| 申请人名称 | 湖北宝源木业有限公司 |
| 申请人地址 | 湖北省荆门市东宝区子陵镇子陵街18号 |
专利法律状态
2022-11-15
授权
状态信息
授权
摘要
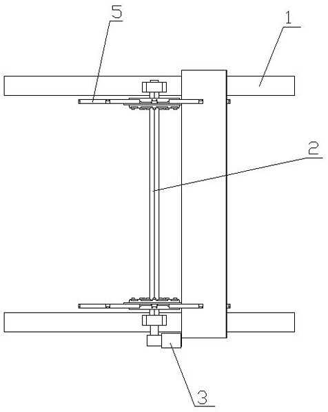
一种木地板翻板装置,它包括机架(1)、主轴(2)、主轴驱动电机(3)和一对翻板组件,主轴(2)的两端分别通过轴承和轴承座安装在机架(1)上,主轴驱动电机(3)安装在机架(1)上,主轴驱动电机(3)的动力输出轴通过减速机与主轴(2)的一端传动相连,翻板组件包括固定盘(4)、一组翻板杆(5)、支撑盘(6)和压紧盘(7);优点是:翻板速度快,减轻了工人的劳动强度。


