授权公布号:CN217498982U
一种污水处理一体化设备
有效
申请
2022-01-06
申请公布
1970-01-01
授权
2022-09-27
预估到期
2032-01-06
| 申请号 | CN202220019453.9 |
| 申请日 | 2022-01-06 |
| 授权公布号 | CN217498982U |
| 授权公告日 | 2022-09-27 |
| 分类号 | C02F9/14;C02F3/30N;C02F1/78N;C02F1/50N;C02F1/32N;C02F1/70N |
| 分类 | 水、废水、污水或污泥的处理; |
| 申请人名称 | 北京大北农科技集团股份有限公司 |
| 申请人地址 | 北京市海淀区中关村大街27号中关村大厦19层1901A |
专利法律状态
2022-09-27
授权
状态信息
授权
摘要
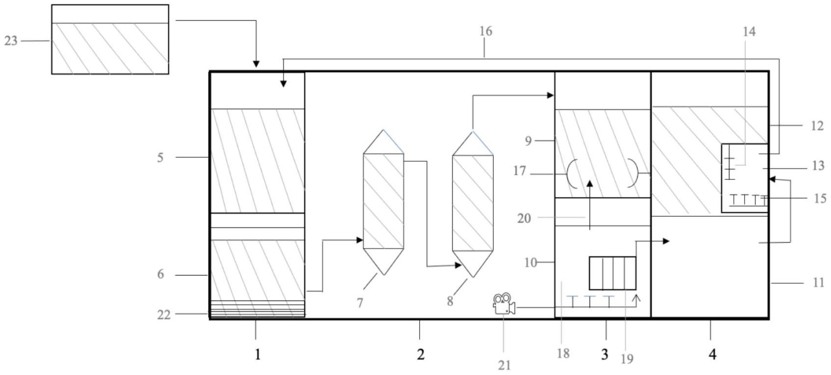
本实用新型提供了一种污水处理一体化设备,该设备用于养殖场洗消站一体化污水处理,主要包括一体设置的四个处理仓,四个处理仓依次并排固定连接,分别为:调节沉淀仓、二级过滤仓、兼氧好氧仓和清水储水仓;其中调节沉淀仓内上下分隔设置调节池和沉淀池,调节池底部设置管路与沉淀池顶部连通;二级过滤仓内依次并排设置粗过滤装置和还原过滤装置;兼氧好氧仓内上下分隔设置兼氧池和MBR好氧池;清水储水仓内上下分隔设置储水池和清水池,所述储水池下部一侧设置消毒池,消毒池则利用臭氧和紫外线耦合杀菌。该系统通过对消毒水和洗消站生活污水的处理,出水实现循环使用,进而达到污染物的零排放。


