授权公布号:CN217179691U
一种新型小铝壳燃气表
有效
申请
2021-12-23
申请公布
1970-01-01
授权
2022-08-12
预估到期
2031-12-23
| 申请号 | CN202123274300.3 |
| 申请日 | 2021-12-23 |
| 授权公布号 | CN217179691U |
| 授权公告日 | 2022-08-12 |
| 分类号 | G01F15/07;G01F15/18;G01F15/06 |
| 分类 | 测量;测试; |
| 申请人名称 | 杭州贝特仪表有限公司 |
| 申请人地址 | 浙江省杭州市临安市青山湖街道松园街188号1幢(B1) |
专利法律状态
2022-08-12
授权
状态信息
授权
摘要
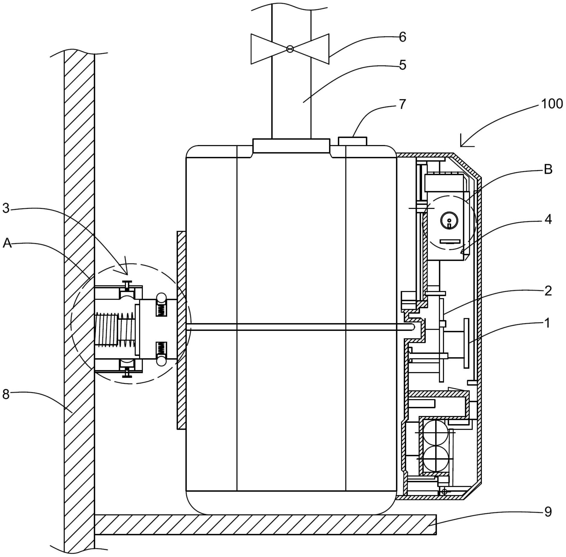
本实用新型为一种新型小铝壳燃气表,在燃气表背部安装有连接装置;在燃气表本体上安装有计数器;连接装置包括固定座以及卡件,卡件与固定座相互匹配连接,在固定座两侧设有按压装置,按压装置包括活动槽,活动槽内设有推杆,推杆与卡板固定连接,活动槽内的推杆套接有弹簧;计数器包括计数板以及计数组件,计数板、计数组件与固定架固定连接。在计数板上连接有第一霍尔传感器、第二霍尔传感器,计数组件包括骨架、字轮、磁钢,骨架与字轮配合连接,磁钢连接于字轮末端。本实用新型有效解决燃气表安装、拆换效率慢以及燃气表计数结构复杂,燃气表体积较大的问题,具有结构简单、体积小巧、计数精准的特点,大大提高了燃气表安装、拆换效率。


