授权公布号:CN216432306U
一种镀锌板生产用钝化液烘干装置
有效
申请
2021-12-16
申请公布
1970-01-01
授权
2022-05-03
预估到期
2031-12-16
| 申请号 | CN202123162669.5 |
| 申请日 | 2021-12-16 |
| 授权公布号 | CN216432306U |
| 授权公告日 | 2022-05-03 |
| 分类号 | F26B9/06;F26B21/04;F26B21/06;F26B25/00;F28D21/00;C23C2/06 |
| 分类 | 干燥; |
| 申请人名称 | 山东汇金彩钢有限公司 |
| 申请人地址 | 山东省滨州市博兴县店子董官村 |
专利法律状态
2022-05-03
授权
状态信息
授权
摘要
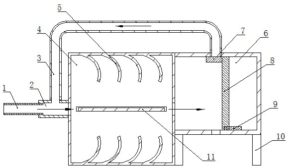
本实用新型提供一种镀锌板生产用钝化液烘干装置,包括干燥箱,所述干燥箱的前、后侧面均设置有供镀锌板穿过的通孔,所述干燥箱的左侧面设置有进风口,所述干燥箱的右侧面设置有出风口,所述干燥箱顶板下表面和底板上表面均设置有缓冲挡风罩,所述干燥箱右侧连通有余热收集箱,所述余热收集箱的顶部与干燥箱的进风口间断式连通。该装置可以快速、高效的将镀锌板表面的钝化液吹干,并对余热空气进行回收利用,节约能源。


