授权公布号:CN216965865U
一种矫平机换辊装置
有效
申请
2022-02-14
申请公布
1970-01-01
授权
2022-07-15
预估到期
2032-02-14
| 申请号 | CN202220298595.3 |
| 申请日 | 2022-02-14 |
| 授权公布号 | CN216965865U |
| 授权公告日 | 2022-07-15 |
| 分类号 | B21D1/02;B21D37/04 |
| 分类 | 基本上无切削的金属机械加工;金属冲压; |
| 申请人名称 | 江苏大明工业科技集团有限公司 |
| 申请人地址 | 江苏省无锡市锡山区东北塘镇 |
专利法律状态
2022-07-15
授权
状态信息
授权
摘要
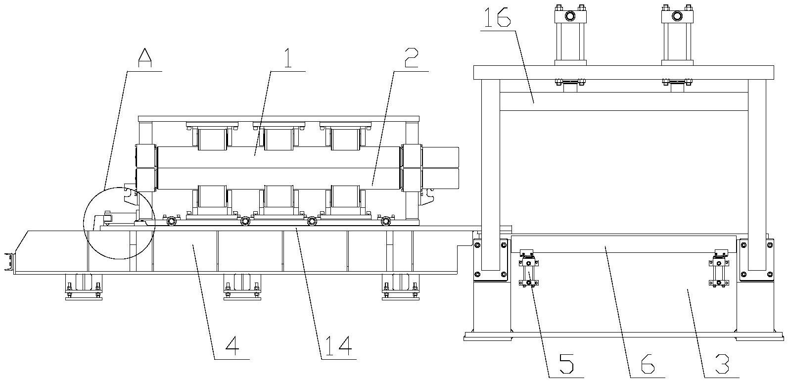
本实用新型公开了一种矫平机换辊装置,包括机座,机座正上方设置有升降座,升降座底部可拆卸连接有上辊包,机座顶部可拆卸连接有下辊包,机座的一侧设置有牵引座,牵引座上水平分布有两个相互平行的牵引轨道,牵引轨道的一端与机座连接,牵引座上还沿牵引轨道分布方向设置有导轨,导轨上设置有牵引小车。本实用新型更换上辊包和下辊包时,将上辊包和下辊包拆下,使两者堆叠在一起,通过牵引小车拉动上辊包和下辊包沿牵引轨道移动到牵引座上,大大提升了上辊包和下辊包拆卸更换的便捷度,提升工作效率。


