授权公布号:CN219176648U
一种离心式冷水机组全自动紧急供油系统
有效
申请
2023-02-09
申请公布
1970-01-01
授权
2023-06-13
预估到期
2033-02-09
| 申请号 | CN202320189370.9 |
| 申请日 | 2023-02-09 |
| 授权公布号 | CN219176648U |
| 授权公告日 | 2023-06-13 |
| 分类号 | F04D29/58;F04D29/063 |
| 分类 | 液体变容式机械;液体泵或弹性流体泵; |
| 申请人名称 | 顿汉布什(中国)工业有限公司 |
| 申请人地址 | 山东省烟台市莱山区顿汉布什路1号 |
专利法律状态
2023-06-13
授权
状态信息
授权
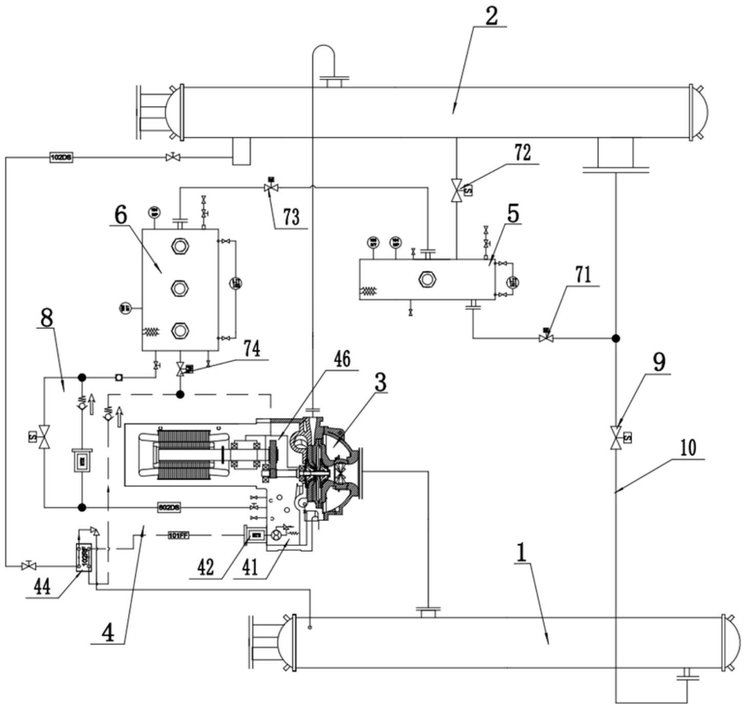
摘要
本实用新型涉及一种离心式冷水机组全自动紧急供油系统,包括与控制系统通信连接的稳压罐、外置高位油箱和紧急供油控制组件,冷凝器的出液口通过出液管路与蒸发器连接,离心式压缩机内设有内置油道,紧急供油控制组件包括供液电动球阀一、紧急供气电磁阀和紧急供油电磁阀,稳压罐内设有加热器一,稳压罐的进液口通过供液电动球阀一与出液管路连接,稳压罐的出气口通过紧急供气电磁阀与外置高位油箱连接,外置高位油箱内设有加热器二,外置高位油箱的出液口所述紧急供油电磁阀与内置油道连接。稳压罐内的气体向外置高位油箱提供气体动力源,将外置高位油箱的冷冻油压到压缩机内置流道内进行供油,保证离心式压缩机内的转动部件冷冻油的供应。


