授权公布号:CN210357285U
一种立式碾米机的可调节式出料口
有效
申请
2019-05-30
申请公布
1970-01-01
授权
2020-04-21
预估到期
2029-05-30
| 申请号 | CN201920800518.1 |
| 申请日 | 2019-05-30 |
| 授权公布号 | CN210357285U |
| 授权公告日 | 2020-04-21 |
| 分类号 | B02B7/02 |
| 分类 | 破碎、磨粉或粉碎;谷物碾磨的预处理; |
| 申请人名称 | 湖北永祥粮食机械股份有限公司 |
| 申请人地址 | 湖北省孝感市安陆市府河大道8号 |
专利法律状态
2020-04-21
授权
状态信息
授权
摘要
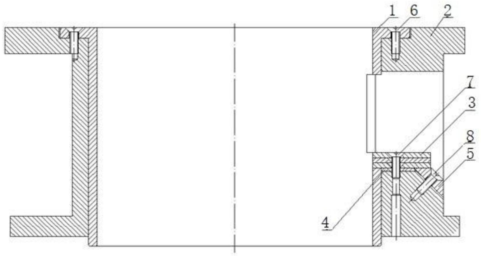
本实用新型公开了一种立式碾米机的可调节式出料口,包括出料衬圈、出料座筒、出料口大衬板、出料口小衬板,所述出料衬圈通过若干出料沉头螺钉固定于出料座筒的内孔中,出料座筒和出料衬圈的对应处均开有一个近似于长方形的小方孔,即为出料口,出料口大衬板有若干个,若干个出料口大衬板上下叠加到一起与出料口小衬板配合,并通过衬板沉头螺钉固定在出料口底面处,靠近出料口外侧处设有斜置的出料口溜板,出料口溜板为梯形结构,其一侧边为水平设置,出料口溜板与出料口小衬板配合支撑出料口大衬板。该出料口能大幅度地改变碾米室内部压力,使碾米机加工出来的大米能很好的满足大米的精度要求和保证出米率。


