授权公布号:CN105299894B
一种燃气热水锅炉空气循环节能系统
有效
申请
2015-11-30
申请公布
2016-02-03
授权
2018-12-04
预估到期
2035-11-30
| 申请号 | CN201510853939.7 |
| 申请日 | 2015-11-30 |
| 申请公布号 | CN105299894A |
| 申请公布日 | 2016-02-03 |
| 授权公布号 | CN105299894B |
| 授权公告日 | 2018-12-04 |
| 分类号 | F24H8/00;F24H9/00;F24H9/18 |
| 分类 | 供热;炉灶;通风; |
| 申请人名称 | 天津宝成机械制造股份有限公司 |
| 申请人地址 | 天津市津南区双桥河镇工业园区欣欣中路9号 |
专利法律状态
2018-12-04
授权
状态信息
授权
2016-03-02
实质审查的生效
状态信息
实质审查的生效IPC(主分类):F24H 8/00申请日:20151130
2016-02-03
公布
状态信息
公开
摘要
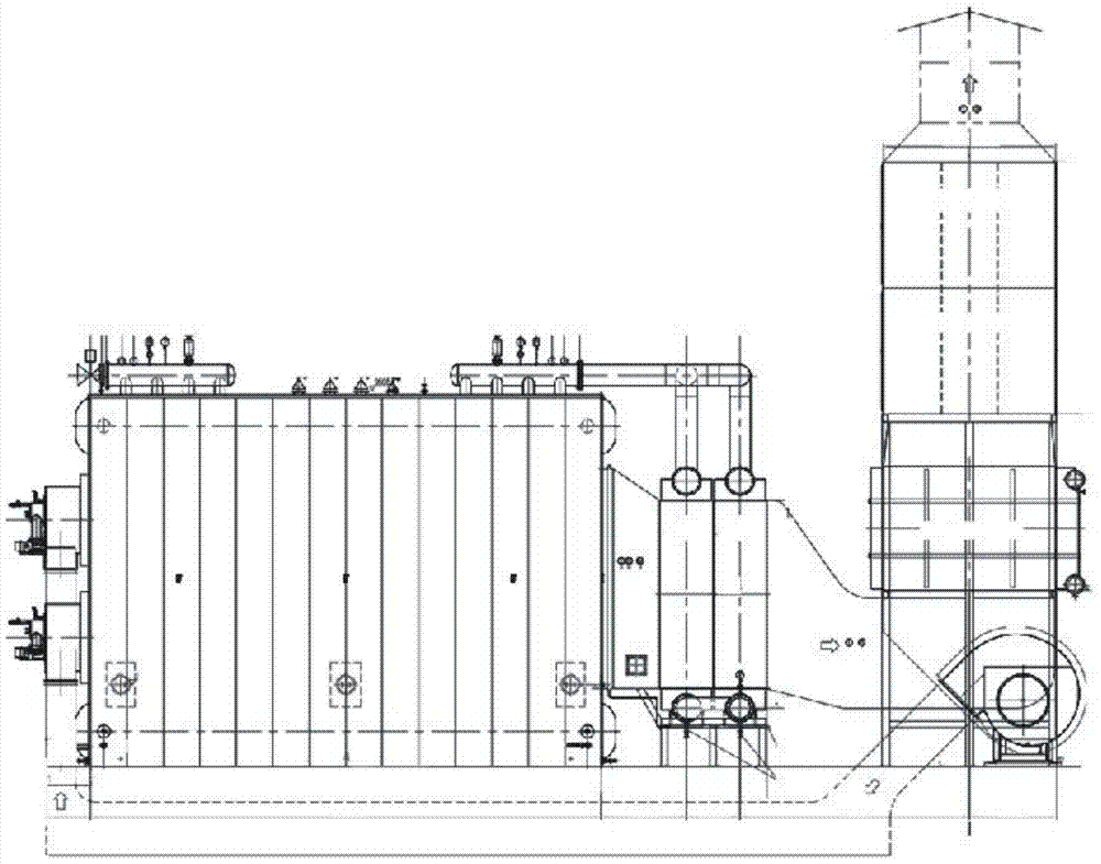
本发明涉及一种燃气热水锅炉空气循环节能系统,包括炉体、燃烧器、烟道、烟囱、节能器、水冷型冷凝器、第二级空气型冷凝器以及第一级空气型冷凝器,炉体一端安装有上、下间隔设置的两台燃烧器,炉体另一端制有烟气出口并密封连接有烟道,烟道的出口连接到竖直的烟囱,在炉体与烟囱之间的烟道中安装有两级顺序设置的节能器,烟囱由下向上依次安装有水冷型冷凝器、第二级空气型冷凝器以及第一级空气型冷凝器;在烟囱下部一侧连通安装有一鼓风机,该鼓风机的排风口通过封闭管路连通炉体的燃烧器进风口。本发明运行稳定、安全可靠、出力足、排烟温度低、效率高、烟气排放指标达,更符合市场发展需要。


