授权公布号:CN208508535U
一体式紧凑型高压并联电抗器成套装置
有效
申请
2018-01-02
申请公布
1970-01-01
授权
2019-02-15
预估到期
2028-01-02
| 申请号 | CN201820007025.8 |
| 申请日 | 2018-01-02 |
| 授权公布号 | CN208508535U |
| 授权公告日 | 2019-02-15 |
| 分类号 | H02J3/18 |
| 分类 | 发电、变电或配电; |
| 申请人名称 | 日新电机(无锡)有限公司 |
| 申请人地址 | 江苏省无锡市新吴区新华路28号 |
专利法律状态
2019-02-15
授权
状态信息
授权
摘要
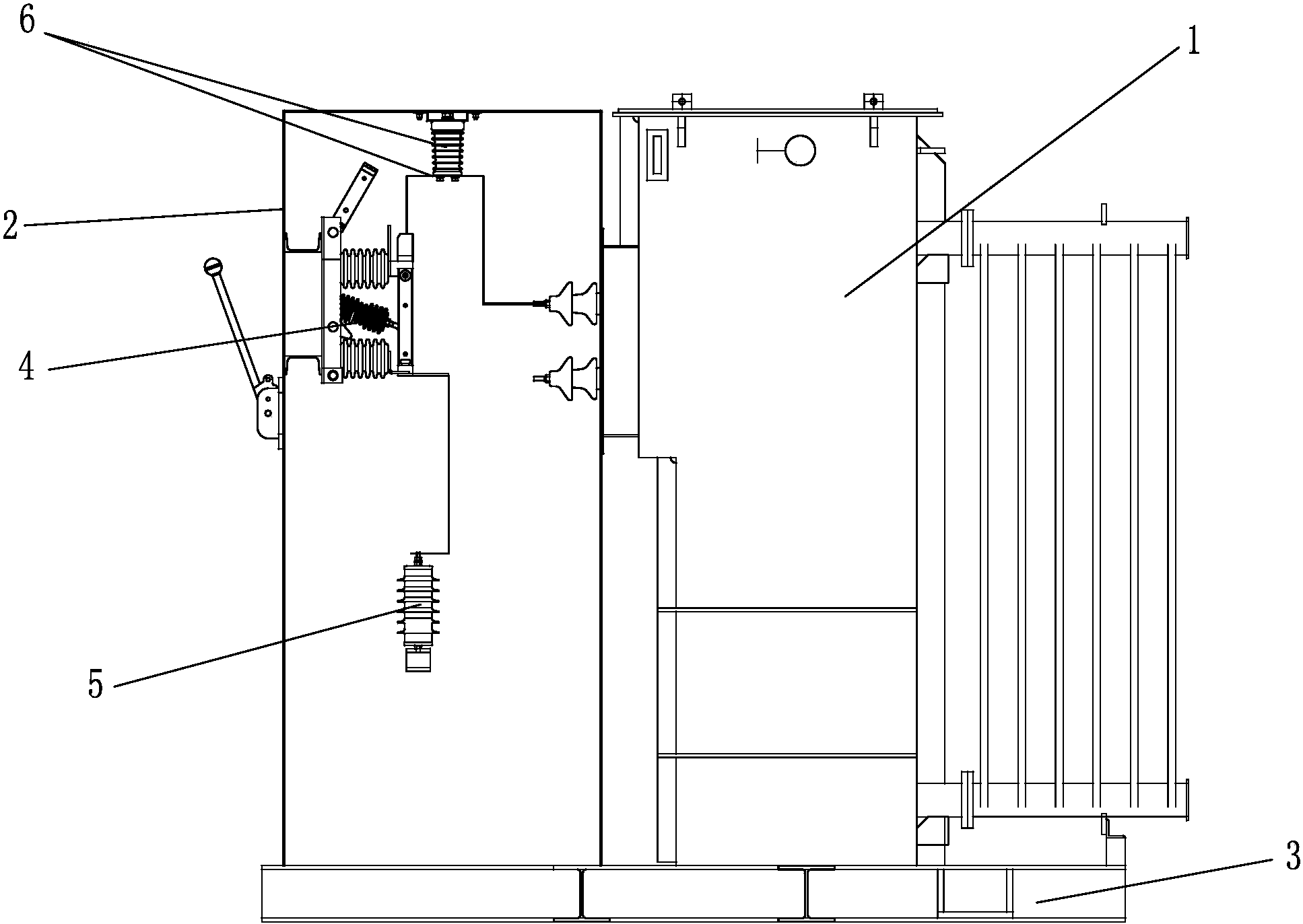
本实用新型涉及一种一体式紧凑型高压并联电抗器成套装置,其特征是:包括进线柜柜体,在进线柜柜体中安装油浸铁心高压并联电抗器、隔离/接地开关、避雷器和支撑绝缘子和导电母排。本实用新型所述一体式紧凑型高压并联电抗器成套装置,使用油浸式铁心并联电抗器和一体式紧凑型结构,最大限度的缩小了并联电抗器装置的占地面积。装置无外露的带电部位,更安全,户内户外均可使用。


