授权公布号:CN216331840U
单排货车工具箱固定结构
有效
申请
2021-10-30
申请公布
1970-01-01
授权
2022-04-19
预估到期
2031-10-30
| 申请号 | CN202122631699.X |
| 申请日 | 2021-10-30 |
| 授权公布号 | CN216331840U |
| 授权公告日 | 2022-04-19 |
| 分类号 | B60R11/06 |
| 分类 | 一般车辆; |
| 申请人名称 | 山东九州汽车制造有限公司 |
| 申请人地址 | 山东省临沂市蒙阴县经济开发区蒙山五路006号 |
专利法律状态
2022-04-19
授权
状态信息
授权
摘要
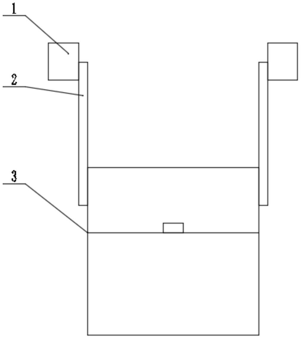
本实用新型公开了一种单排货车工具箱固定结构,它属于工具箱固定结构领域,其解决了现有技术中缺少一种结构简单,通过固定板安装工具箱,提高空间利用的单排货车工具箱固定结构的问题。它主要包括穿梁,所述穿梁上设有固定板,固定板上设有长条孔和减重孔,两片固定板分别固定在两个穿梁上,固定板的长条孔内通过螺栓设有工具箱。本实用新型主要用于单排货车工具箱的安装。


