授权公布号:CN212798420U
一种皮带输送机清料装置
有效
申请
2020-05-29
申请公布
1970-01-01
授权
2021-03-26
预估到期
2030-05-29
| 申请号 | CN202020948052.2 |
| 申请日 | 2020-05-29 |
| 授权公布号 | CN212798420U |
| 授权公告日 | 2021-03-26 |
| 分类号 | B65G45/10 |
| 分类 | 输送;包装;贮存;搬运薄的或细丝状材料; |
| 申请人名称 | 青岛新型建设机械有限公司 |
| 申请人地址 | 山东省青岛市城阳区夏庄镇后古镇村(玉皇岭工业园) |
专利法律状态
2021-03-26
授权
状态信息
授权
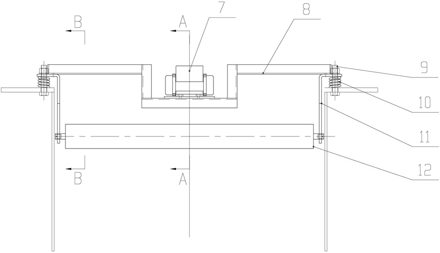
摘要
为解决现有技术中清料效果差、浪费材料、不易维护、输送量偏差大以及皮带易跑偏磨损和损坏的问题,本实用新型提供一种皮带输送机清料装置,包括振动器、振动器支架、托辊、托辊支架和弹性机构;其中,振动器安装在振动器支架上,振动器支架与托辊支架固定连接,托辊与托辊支架通过轴连接,托辊可绕轴旋转;振动支架或托辊支架通过弹性机构固定在皮带输送机机架上,弹性形变位移方向与振动器振动方向相符;托辊表面与皮带输送机的皮带相接触;其优点在于清料效果好,不会再次材料浪费、增大物料输送量的偏差以及造成皮带跑偏,不会损伤皮带,不影响皮带使用寿命,同时维护方便,成本低,通用性高,各种皮带都适用。


