授权公布号:CN214214271U
一种混凝土配料装置
有效
申请
2020-10-28
申请公布
1970-01-01
授权
2021-09-17
预估到期
2030-10-28
| 申请号 | CN202022435263.9 |
| 申请日 | 2020-10-28 |
| 授权公布号 | CN214214271U |
| 授权公告日 | 2021-09-17 |
| 分类号 | B28C7/06;B28C7/04 |
| 分类 | 加工水泥、黏土或石料; |
| 申请人名称 | 青岛新型建设机械有限公司 |
| 申请人地址 | 山东省青岛市城阳区夏庄镇后古镇村(玉皇岭工业园) |
专利法律状态
2021-09-17
授权
状态信息
授权
摘要
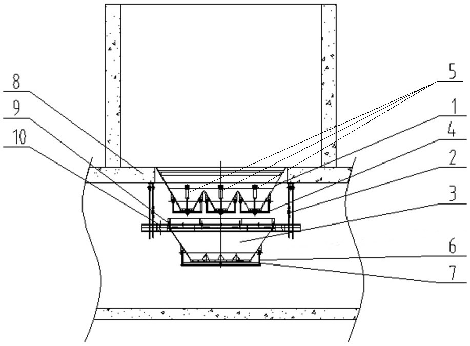
为解决现有混凝土配料装置易堵料、计量效率低、计量精度难以保证的问题,本实用新型提供了一种混凝土配料装置,包括储料斗、储料斗卸料门、压力缸、吊挂式称重传感器、计量斗、计量斗卸料门;所述储料斗被固定在计量斗的上方,储料斗底端设置有两排储料斗卸料门,每排设有多个储料斗卸料门,每个储料斗卸料门由压力缸单独驱动控制;计量斗通过吊挂式称重传感器固定在储料斗的下方;计量斗底端设有计量斗卸料门,计量斗卸料门的开口处设有若干分料板;其优点在于其结构简单,针对不同砂石进行控制,对于含泥量大的砂石,不易堵门,计量时间短;对于石子类多的砂石,可提高计量精度;此外提高了计量斗的容积率,可将砂石料更均匀地分布在计量斗内。


