授权公布号:CN203227413U
有机废弃物酦酵处理的废气处理装置
失效
申请
2013-04-07
申请公布
1970-01-01
授权
2013-10-09
预估到期
2023-04-07
| 申请号 | CN201320169038.2 |
| 申请日 | 2013-04-07 |
| 授权公布号 | CN203227413U |
| 授权公告日 | 2013-10-09 |
| 分类号 | B01D53/76 |
| 分类 | 一般的物理或化学的方法或装置; |
| 申请人名称 | 集辰(福建)农林发展有限公司 |
| 申请人地址 | 福建省三明市沙县金古工业园 |
专利法律状态
2020-03-27
专利权的终止
状态信息
未缴年费专利权终止;IPC(主分类):B01D 53/76;专利号:ZL2013201690382;申请日:20130407;授权公告日:20131009;终止日期:20190407
2013-10-09
实用新型专利权授予
状态信息
授权
摘要
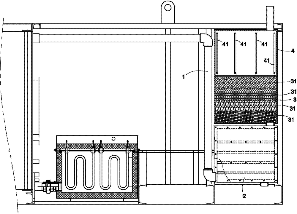
一种有机废弃物酦酵处理的废气处理装置,其包括连接酦酵处理设备的废气管路,所述废气管路连接至装满净化水液的净化槽下方,所述净化槽上方接设一其内装有可吸附或阻滤有害物质或气味的滤材的过滤槽,所述过滤槽上方接设一其内装设有杀菌灯,净化槽内隔设连续弯绕的通道。废气沿着弯绕通道而使所含的部分有害物质沉淀或溶于该水液中,再令净化后的废气再导入一其内装设有滤材的过滤槽,让废气中所含的其它有害物质或气味,在通过滤材时被吸附或阻挡下来,最后再把废气导入一其内装设有杀菌灯的灭菌槽,令最后废气中所含的有害细菌杀除灭绝,进而让排放出去的气体更为无色、无臭、无毒及无病菌,进而更符合环境保护的要求。


