授权公布号:CN204905743U
一种自冷式高压交流金属封闭开关设备
有效
申请
2014-12-10
申请公布
1970-01-01
授权
2015-12-23
预估到期
2024-12-10
| 申请号 | CN201420777227.2 |
| 申请日 | 2014-12-10 |
| 授权公布号 | CN204905743U |
| 授权公告日 | 2015-12-23 |
| 分类号 | H02B13/02;H02B1/56 |
| 分类 | 发电、变电或配电; |
| 申请人名称 | 陕西华电电气有限公司 |
| 申请人地址 | 陕西省西安市雁塔区公园南路等驾坡工业园区6号 |
专利法律状态
2016-10-19
专利申请权、专利权的转移
状态信息
专利权的转移;IPC(主分类):H02B 13/02;登记生效日:20160926;变更事项:专利权人;变更前权利人:西安泰劳森电气科技有限公司;变更后权利人:西安蓝光机电有限公司;变更事项:地址;变更前权利人:710032 陕西省西安市浐灞生态区矿山路东方罗马花园第5幢1单元22层12205号房;变更后权利人:710043 陕西省西安市雁塔区公园南路等驾坡工业园区6号;变更事项:专利权人;变更后权利人:陕西华电电气有限公司
2016-10-19
著录事项变更
状态信息
著录事项变更;IPC(主分类):H02B 13/02;变更事项:发明人;变更前:白宇;变更后:谢瑞生 侯立身
2015-12-23
实用新型专利权授予
状态信息
授权
摘要
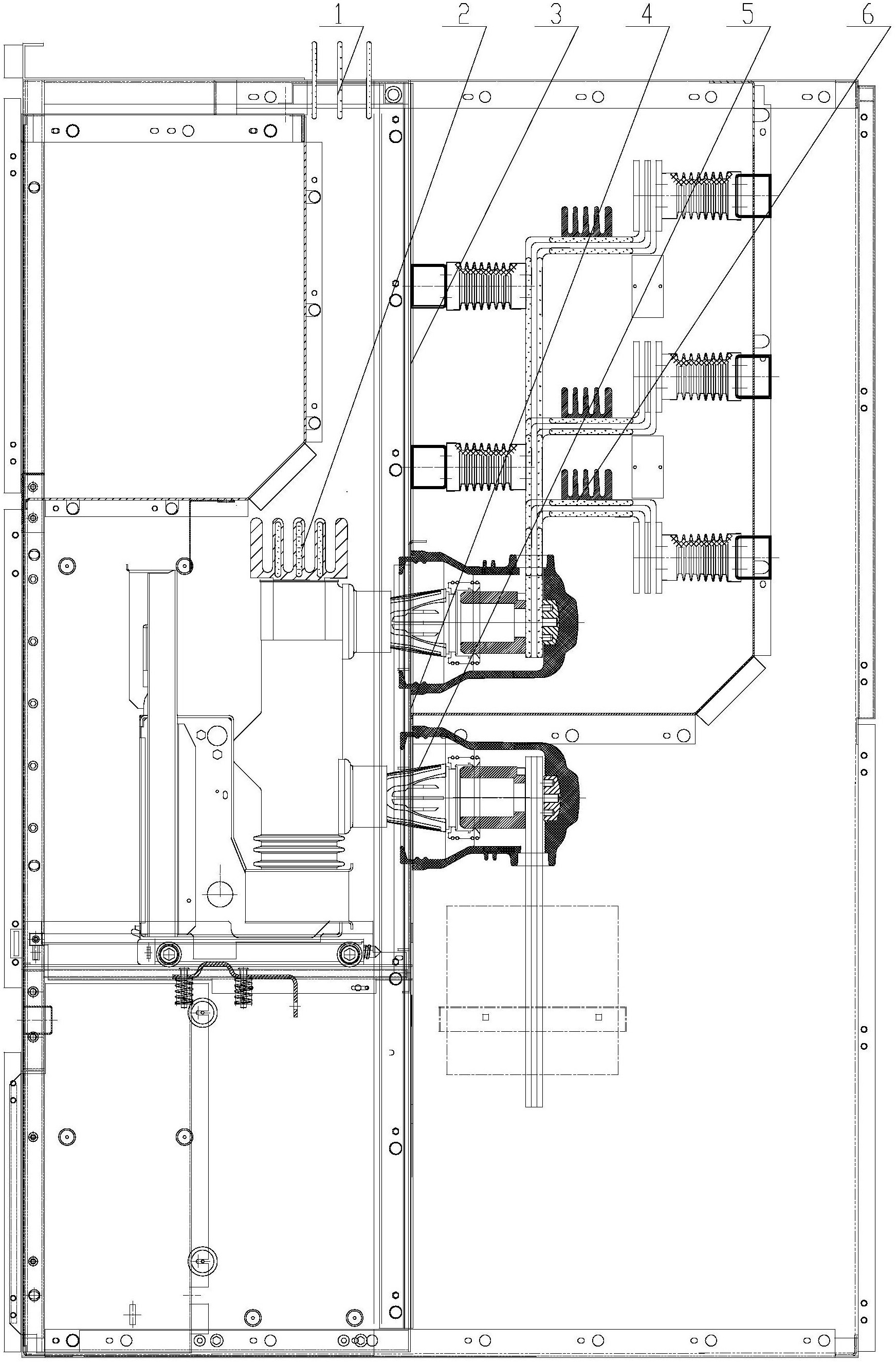
本实用新型公开了一种自冷式高压交流金属封闭开关设备,柜体分四个单独的隔室:断路器室、主母线室、电缆室和仪表室。在断路器顶部的泄压通道盖板上加装顶部热管散热器;在断路器静导电杆安装断路器热管散热器;在前后柜之间的上隔板上,即断路器室与主母线室之间的隔板焊接隔板热管散热器;在触头盒安装板上焊接触头盒安装板热管散热器;在断路器的触臂上安装触臂热管散热器;在静触头引出的母线上安装静触头母线散热器。本实用新型利用热管的高效热传导性能,可迅速将大电流真空灭弧室中动静触头接触产生的热传导到空气中,使其温升值控制在国家标准规定的范围内。


