授权公布号:CN206801338U
一种90度转角无立柱推拉门
有效
申请
2017-05-02
申请公布
1970-01-01
授权
2017-12-26
预估到期
2027-05-02
| 申请号 | CN201720479233.3 |
| 申请日 | 2017-05-02 |
| 授权公布号 | CN206801338U |
| 授权公告日 | 2017-12-26 |
| 分类号 | E06B3/00;E06B1/52;E06B3/46;E06B7/22 |
| 分类 | 一般门、窗、百叶窗或卷辊遮帘;梯子; |
| 申请人名称 | 佛山市英辉铝型材有限公司 |
| 申请人地址 | 广东省佛山市三水中心科技工业区范湖官地区5号(F1-F5、F7-F8) |
专利法律状态
2017-12-26
授权
状态信息
授权
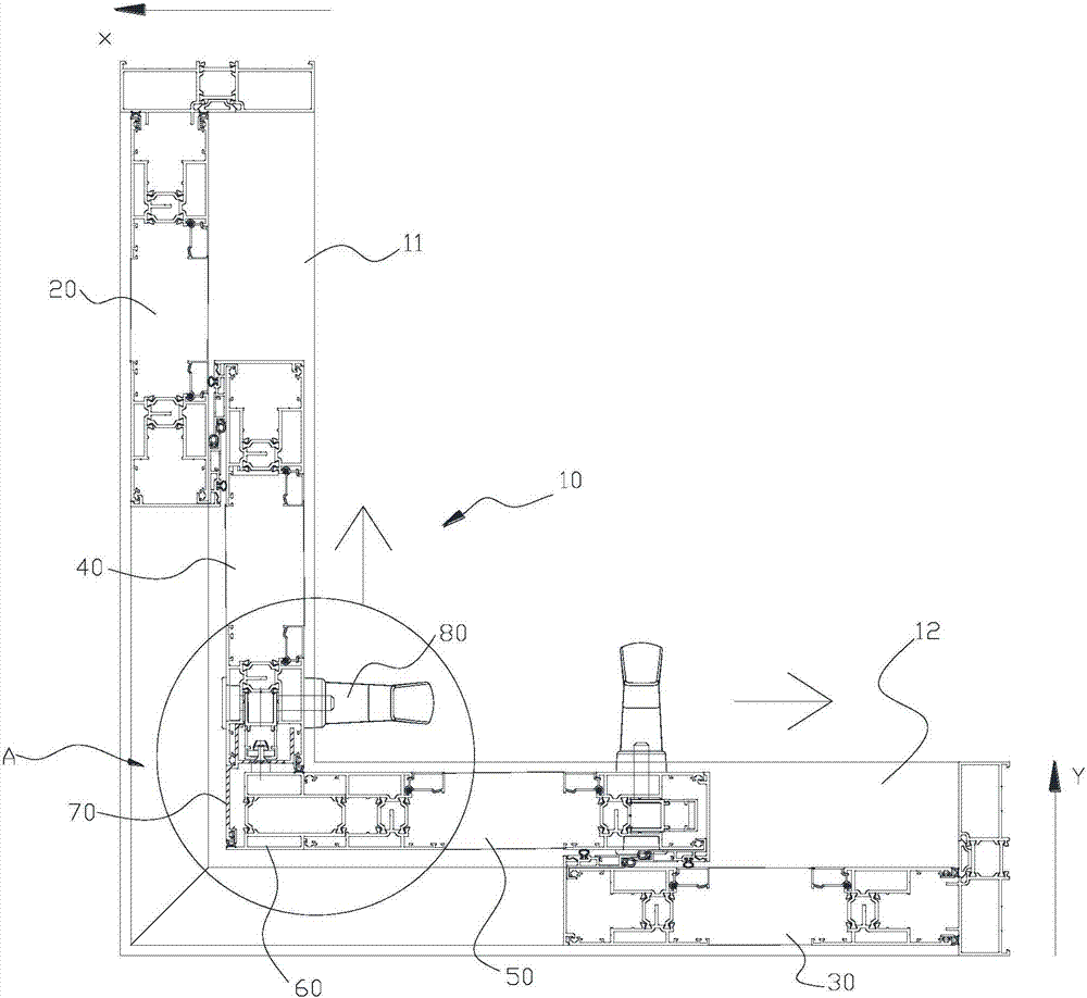
摘要
本实用新型公开了一种90度转角无立柱推拉门,包括锁紧组件,包括连通的第一框体和第二框体的L型框架;还包括固定在第一框体内的第一固定扇、固定在第二框体内的第二固定扇、活动安装在第一框体内并与第一固定扇错开设置的第一活动扇、活动安装在第二框体内并与第二固定扇错开设置的第二活动扇、活动安装在第二框体内并固定在第二活动扇的转角铝型材;第一活动扇固定有与其挡板配合形成用于容纳转角铝型材的L型容纳槽;L型容纳槽设有第一密封胶条和第二密封胶条;转角铝型材设有第一贴合面和第二贴合面;锁紧组件用于选择性地锁紧或松开第一活动扇和转角铝型材。本实用新型能实现推拉门开启空间最大化,以利于大件物品的搬运和避免碰撞。


