授权公布号:CN218490949U
一种集装箱散料装载机构及装载系统
有效
申请
2022-07-20
申请公布
1970-01-01
授权
2023-02-17
预估到期
2032-07-20
| 申请号 | CN202221884625.5 |
| 申请日 | 2022-07-20 |
| 授权公布号 | CN218490949U |
| 授权公告日 | 2023-02-17 |
| 分类号 | B65G65/32;B65G69/18;B65G69/00;B65G69/22 |
| 分类 | 输送;包装;贮存;搬运薄的或细丝状材料; |
| 申请人名称 | 哈尔滨博实自动化股份有限公司 |
| 申请人地址 | 黑龙江省哈尔滨市道里区开发区迎宾路集中区东湖街9号 |
专利法律状态
2023-02-17
授权
状态信息
授权
摘要
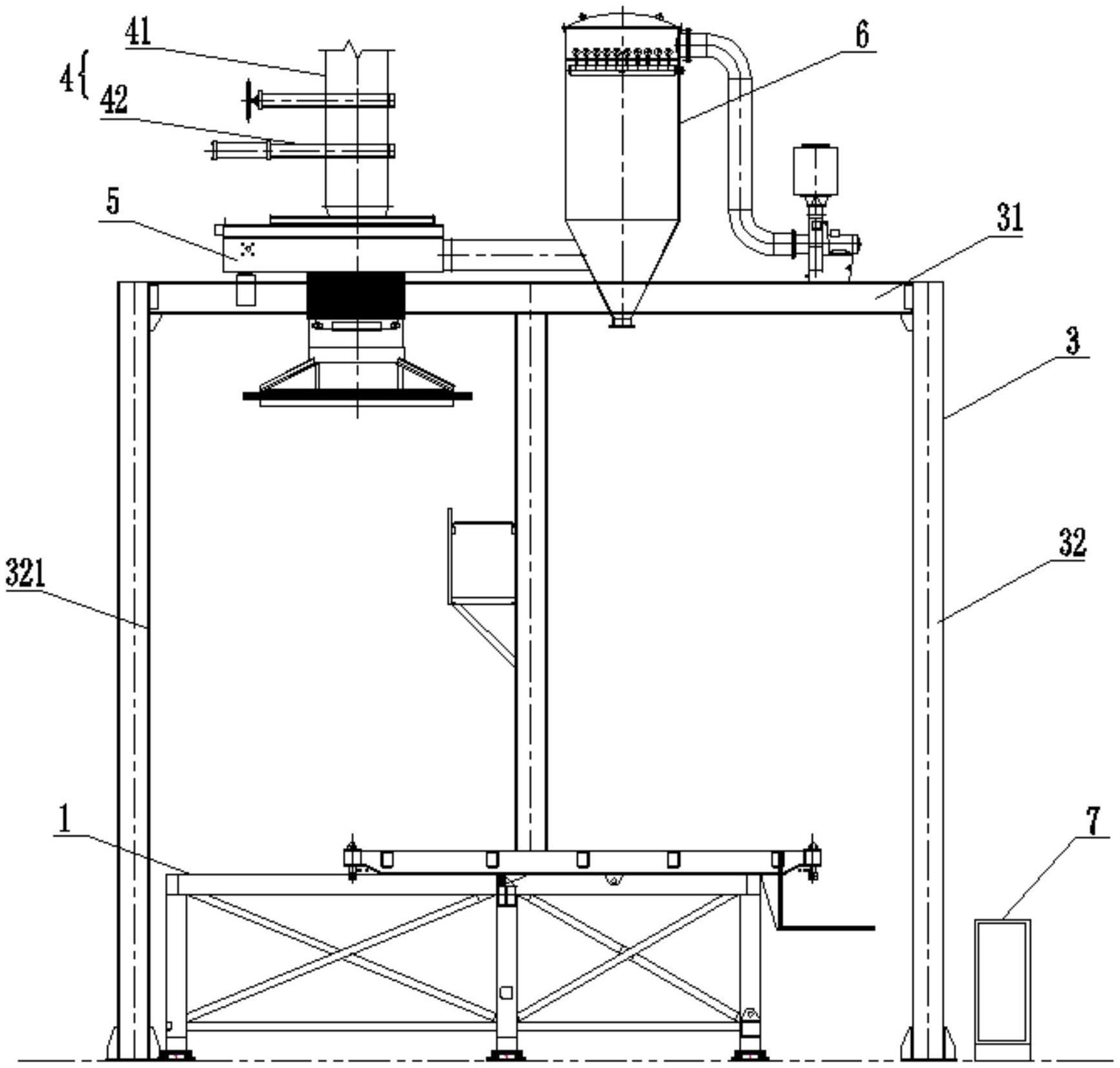
本实用新型涉及物料装载设备技术领域,具体涉及一种集装箱散料装载机构及装载系统;集装箱散料装载机构包括:翻转机设于装载工位,翻转机适用于抓取和翻转集装箱;支撑框架靠近翻转机设置,支撑框架与翻转机之间留有翻转空间;下料机构设于支撑框架上,下料机构用于与物料源连接;伸缩卸料头伸缩卸料头设于支撑框架上,伸缩卸料头的一端与下料机构连接,另一端与翻转后的集装箱对应设置;除尘机构设于支撑框架上,且除尘机构靠近下料机构设置,除尘机构用于收集灰尘。提高了装载速度,也避免人工控制装载量,保证了装载量的准确度,进而保证了同批次物料的一致性,自动化程度高;减小了装载物料过程中产生的灰尘,避免环境污染。


