授权公布号:CN109365144B
一种离心机的防爆翻盖装置
有效
申请
2018-11-22
申请公布
2019-02-22
授权
2024-02-02
预估到期
2038-11-22
| 申请号 | CN201811396014.4 |
| 申请日 | 2018-11-22 |
| 申请公布号 | CN109365144A |
| 申请公布日 | 2019-02-22 |
| 授权公布号 | CN109365144B |
| 授权公告日 | 2024-02-02 |
| 分类号 | B04B7/02;B04B7/06 |
| 分类 | 用于实现物理或化学工艺过程的离心装置或离心机; |
| 申请人名称 | 江苏牡丹离心机制造有限公司 |
| 申请人地址 | 江苏省苏州市张家港市乐余镇兆丰开发区江苏牡丹离心机制造有限公司 |
专利法律状态
2024-02-02
授权
状态信息
授权
2019-02-22
公布
状态信息
公布
摘要
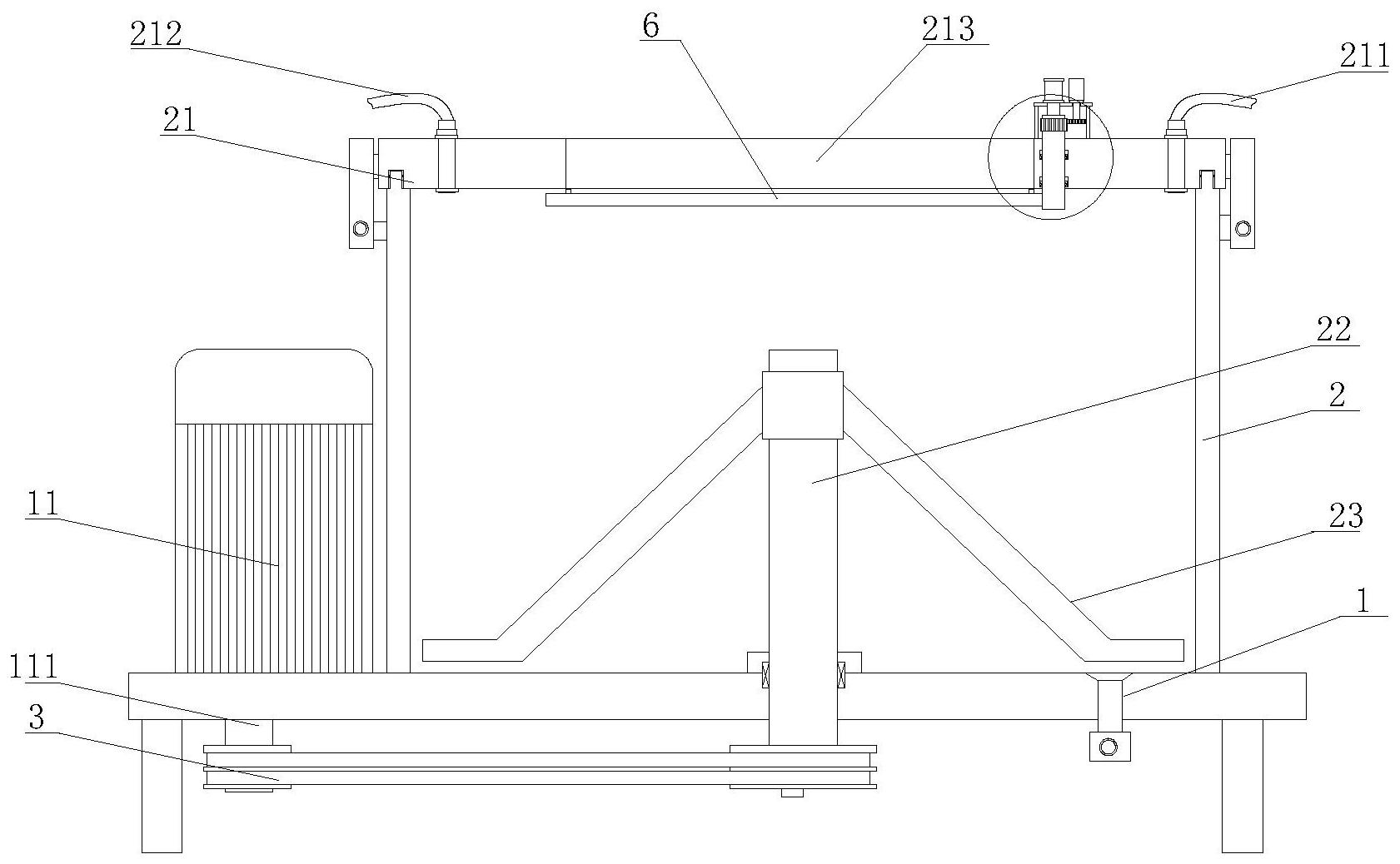
本发明公开了一种离心机的防爆翻盖装置,包括离心机架以及安装在离心机架上的机壳,离心机架上还安装有位于机壳一旁的电机,电机的输出端上连接有贯穿离心机架的电机轴,所述机壳的顶部安装有顶盖,机壳底面的离心机架的轴承内安装有旋转的转轴,转轴和电机轴上的套环上套有皮带,转轴位于的机壳的内部上安装有离心叶片,齿轮B与齿轮A是马达驱动盖板旋转的动力,盖板跟随支撑杆的旋转而转动,盖板旋转将通孔开启或者闭合,进氮管和出氮管可以向机壳内施加或者排出氮气,从而避免防爆的问题,气缸控制气缸杆带动环块和支撑杆的上升或者下降,密封环在盖板上升并与通孔的外部相接触时,与通孔相密封,密封环在盖板上升时将通孔完全堵住。


