授权公布号:CN216711338U
一种曳引比为4比1的电梯布置结构
有效
申请
2021-12-01
申请公布
1970-01-01
授权
2022-06-10
预估到期
2031-12-01
| 申请号 | CN202123004760.4 |
| 申请日 | 2021-12-01 |
| 授权公布号 | CN216711338U |
| 授权公告日 | 2022-06-10 |
| 分类号 | B66B17/12;B66B11/08;B66B11/00 |
| 分类 | 卷扬;提升;牵引; |
| 申请人名称 | 巨立电梯股份有限公司 |
| 申请人地址 | 江苏省苏州市昆山市巴城镇正仪工商区312国道北侧 |
专利法律状态
2022-06-10
授权
状态信息
授权
摘要
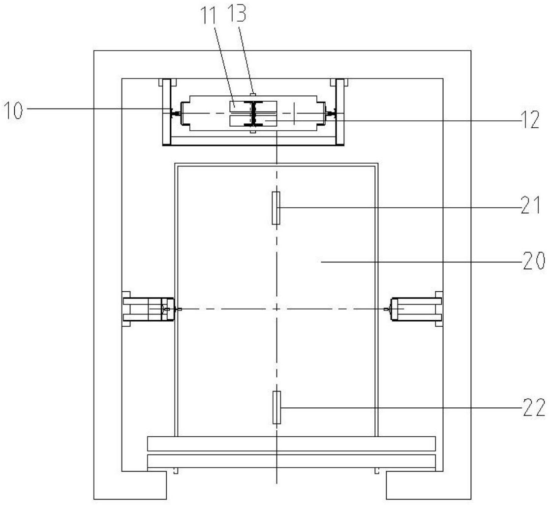
本实用新型公开了一种曳引比为4比1的电梯布置结构,属于电梯结构设计领域,包括对重框架、轿厢,对重框架设置在轿厢侧部或者后面,对重框架顶部中心处设置有转轴,转轴相对于所述轿厢垂直设置,转轴上设置有对重轮一和对重轮二,对重轮一和对重轮二的正上方设置有对重反绳轮,且对重反绳轮相对于转轴轴线方向夹角为45°‑90°,轿厢顶部设置有轿顶轮一和轿顶轮二,轿顶轮一和轿顶轮二相对于对重框架垂直设置,且轿顶轮一与轿顶轮二上方设置有两个轿厢反绳轮,通过将对重轮一与对重轮二同轴设置,减小对重框架占用的面积,有效节省空间,提高井道利用率。


