授权公布号:CN212026954U
一种金属复合板的安装结构
有效
申请
2019-12-29
申请公布
1970-01-01
授权
2020-11-27
预估到期
2029-12-29
| 申请号 | CN201922414817.4 |
| 申请日 | 2019-12-29 |
| 授权公布号 | CN212026954U |
| 授权公告日 | 2020-11-27 |
| 分类号 | E04F13/22;E04F13/24 |
| 分类 | 建筑物; |
| 申请人名称 | 上海西蒙铝业有限公司 |
| 申请人地址 | 上海市松江区车墩镇泖亭路316号 |
专利法律状态
2020-11-27
授权
状态信息
授权
摘要
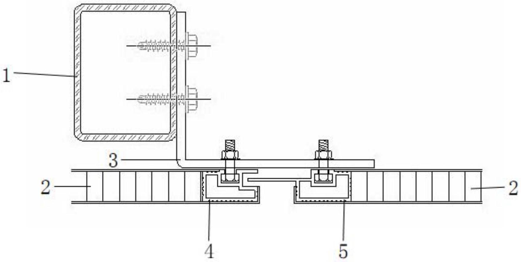
本实用新型公开了一种金属复合板的安装结构,包括钢架基层、一对金属复合板、第一金属边框、第二金属边框和连接件。连接件包括互相垂直的竖向连接部和横向连接部,竖向连接部与钢架基层连接,横向连接部通过第一金属边框、第二金属边框与一对金属复合板连接;第一金属边框上部开设有第一孔槽、右侧开设有一凹槽;第二金属边框上部设有第二孔槽,第二孔槽的左侧设有一金属板延伸向凹槽;第一孔槽和第二孔槽供高强螺栓插入;所述高强螺栓由高强螺母在横向连接部上固定。本实用新型可以实现方便和准确安装金属复合板,使金属复合板牢固安装且位于同一水平面。


