授权公布号:CN218821550U
一种除湿热泵系统及具有其的物料烘干设备
有效
申请
2022-12-07
申请公布
1970-01-01
授权
2023-04-07
预估到期
2032-12-07
| 申请号 | CN202223314251.6 |
| 申请日 | 2022-12-07 |
| 授权公布号 | CN218821550U |
| 授权公告日 | 2023-04-07 |
| 分类号 | F26B21/00;F26B21/08;F26B21/12;F26B21/10 |
| 分类 | 干燥; |
| 申请人名称 | 浙江正理生能科技有限公司 |
| 申请人地址 | 浙江省温州市乐清市乐清湾港区乐商创业园区创新路9号 |
专利法律状态
2023-04-07
授权
状态信息
授权
摘要
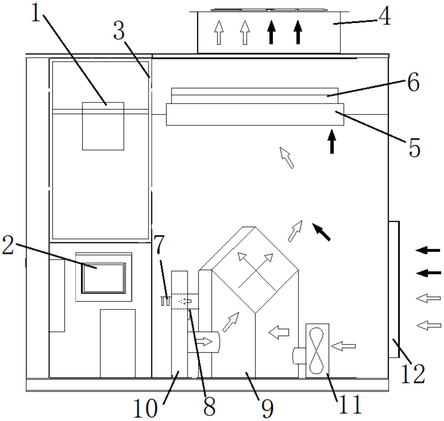
本实用新型涉及除湿烘干装置技术领域,具体涉及一种除湿热泵系统及具有其的物料烘干设备。除湿热泵系统,包括封闭腔室和安装在封闭腔室内的:除湿风机,其风机进风口朝向腔室进风口设置;换热组件,其内部设置有第一换热通道和第二换热通道,除湿风机的风机出风口与第一换热通道入口连通;除湿蒸发器,其入口端与第一换热通道出口连通,其出口端与第二换热通道的入口连通,除湿蒸发器的入口端安装有进风状态监测件,除湿蒸发器的出口端安装有出风温度监测件。利用进风状态监测件和出风温度监测件,实时监测进风温度和湿度以及出风温度,并利用其控制热泵系统的进风量调整热泵系统运行,能够保证热泵系统在不同干燥阶段都能处于最佳的除湿状态。


