授权公布号:CN215216881U
一种复叠并联二次送风污泥热泵带式干化机组
有效
申请
2020-12-31
申请公布
1970-01-01
授权
2021-12-17
预估到期
2030-12-31
| 申请号 | CN202023319142.4 |
| 申请日 | 2020-12-31 |
| 授权公布号 | CN215216881U |
| 授权公告日 | 2021-12-17 |
| 分类号 | F26B1/00;F26B17/04;F26B21/04;F26B21/08;F26B25/06;F25B7/00 |
| 分类 | 干燥; |
| 申请人名称 | 南京五洲制冷集团有限公司 |
| 申请人地址 | 江苏省南京市江宁科学园天印大道1529号 |
专利法律状态
2021-12-17
授权
状态信息
授权
摘要
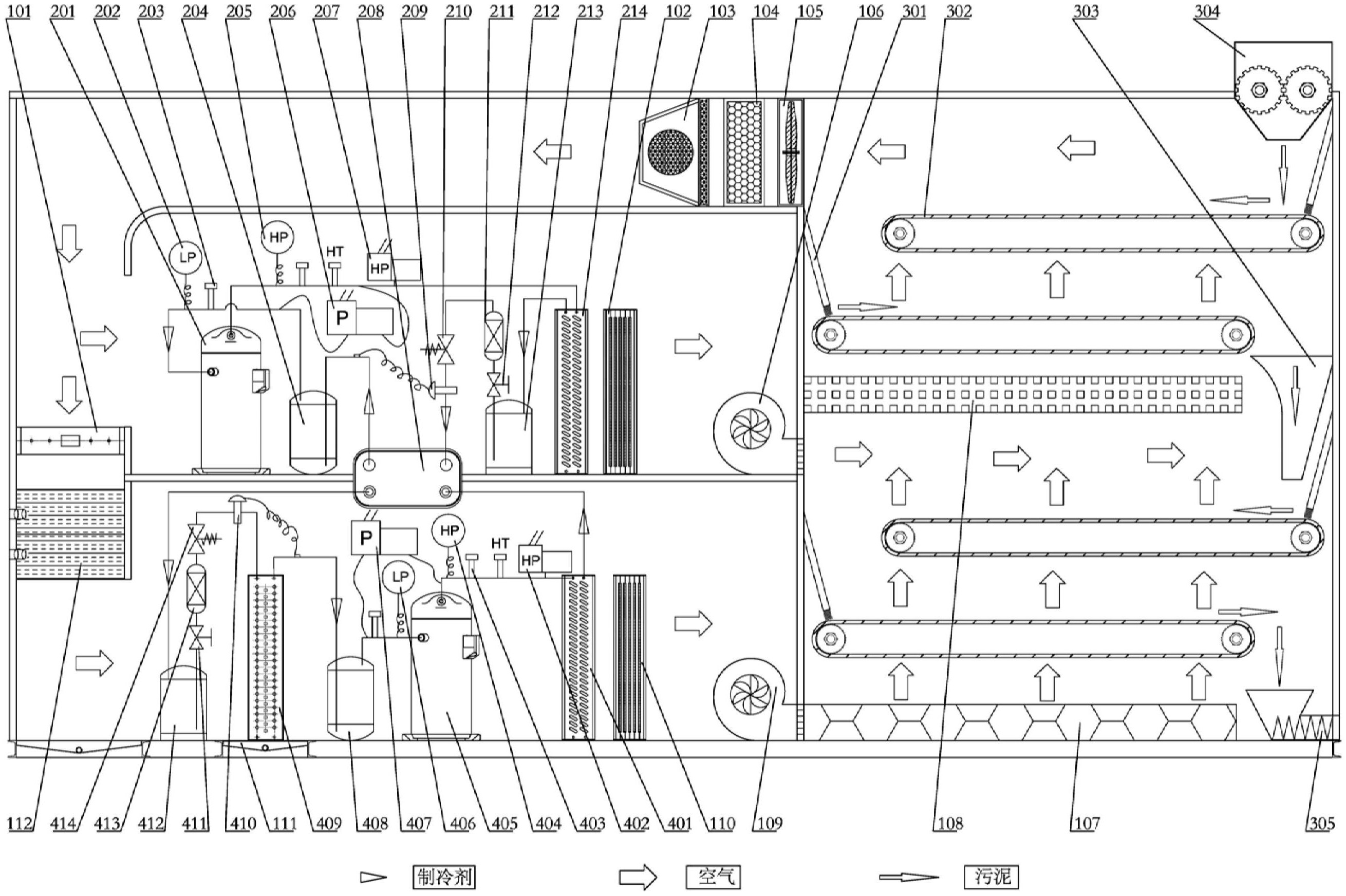
本实用新型公开了一种复叠并联二次送风污泥热泵带式干化机组,包括回风风道、一、二次送风风道,以及空气循环处理系统、二级热泵系统、污泥处理系统和一级制冷热泵系统;空气循环处理系统中的轴流回风风机、二次送风风机和一次送风风机组合实现空气循环,通过回风分风阀和二次送风风机分配一、二次送风风量;一级制冷热泵系统和二级热泵系统复叠设置,并列处理一、二次送风风道中的循环空气;空气循环处理系统还包括一、二次送风电加热器。本实用新型能够对二次送风进行风量分配,提高机组污泥干化速度,缩短污泥热泵干化机组干化周期。


