授权公布号:CN218913271U
一种新型同步排吸离心泵装置
有效
申请
2022-12-06
申请公布
1970-01-01
授权
2023-04-25
预估到期
2032-12-06
| 申请号 | CN202223254784.X |
| 申请日 | 2022-12-06 |
| 授权公布号 | CN218913271U |
| 授权公告日 | 2023-04-25 |
| 分类号 | F04D29/42;F04D13/06 |
| 分类 | 液体变容式机械;液体泵或弹性流体泵; |
| 申请人名称 | 上海成峰流体设备有限公司 |
| 申请人地址 | 上海市松江区小昆山镇新港路1号1幢 |
专利法律状态
2023-04-25
授权
状态信息
授权
摘要
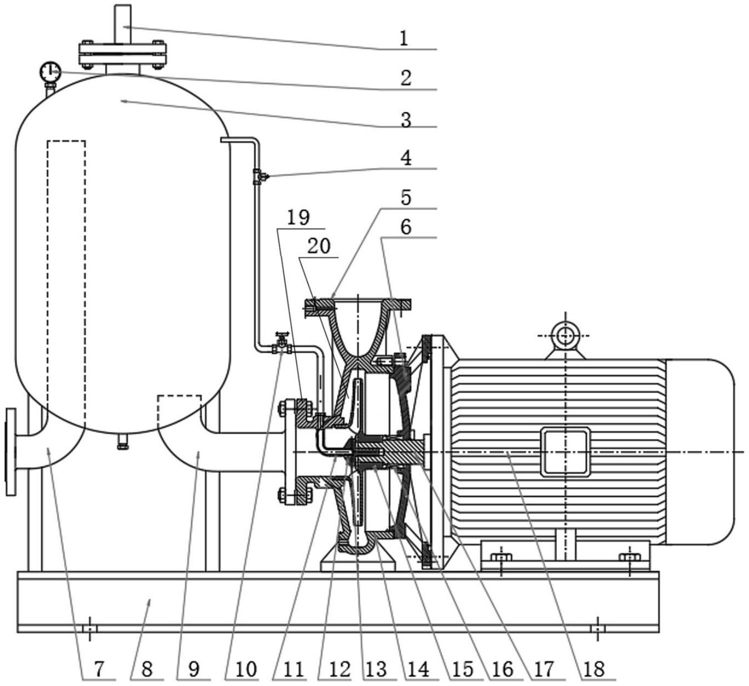
本实用新型公开了一种新型同步排吸离心泵装置,包括虹吸罐、泵体和电机,所述泵体设有进水口和出水口,进水口和出水口之间为泵腔,泵腔中安装有叶轮,电机的输出轴为泵轴,所述泵轴末端连接一离心排吸螺栓,离心排吸螺栓设有离心排吸螺栓流道,所述离心排吸螺栓流道的进口端与泵体进水口内的排气管间隙配合联接,所述排气管穿过进水口侧壁,并依次通过针型阀和电磁阀连接至虹吸罐上部的排气口;所述虹吸罐的出水管与泵体的进水口连接。本实用新型与现有技术相比的优点是:解决同步排吸离心泵的结构复杂,故障率高,造价高,机组耗能大的缺点。


