授权公布号:CN111348820B
一种弯玻璃成型用的旋转式渐变段及钢化成型设备
有效
申请
2020-03-13
申请公布
2020-06-30
授权
2023-05-26
预估到期
2040-03-13
| 申请号 | CN202010176352.8 |
| 申请日 | 2020-03-13 |
| 申请公布号 | CN111348820A |
| 申请公布日 | 2020-06-30 |
| 授权公布号 | CN111348820B |
| 授权公告日 | 2023-05-26 |
| 分类号 | C03B23/023;C03B27/04 |
| 分类 | 玻璃;矿棉或渣棉; |
| 申请人名称 | 洛阳兰迪玻璃机器股份有限公司 |
| 申请人地址 | 河南省洛阳市伊滨区科技大道与诸葛大街交叉口路北 |
专利法律状态
2023-05-26
授权
状态信息
授权
2020-06-30
公布
状态信息
公布
摘要
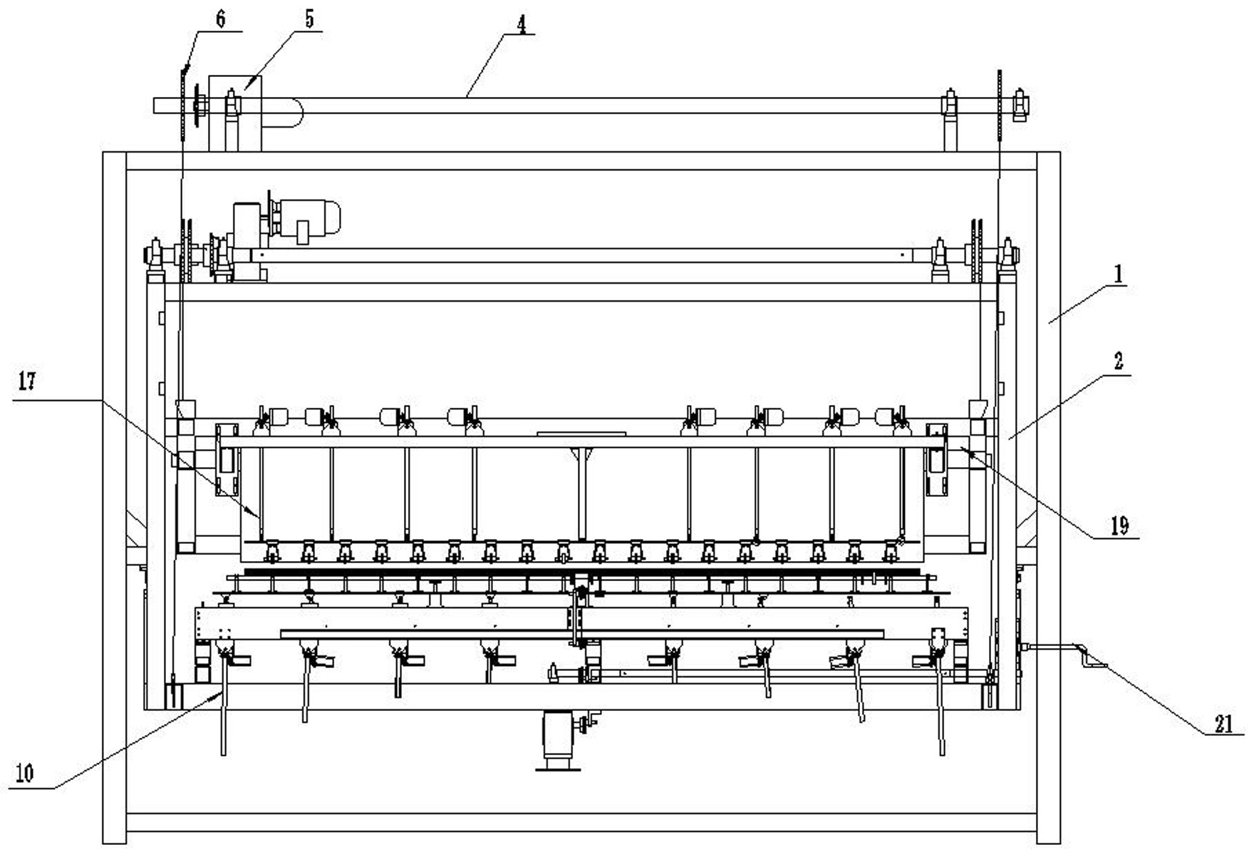
本发明涉及一种弯玻璃成型用的旋转式渐变段及钢化成型设备,旋转式渐变段包括主机架和副机架,多根用于玻璃成型的软轴辊道沿玻璃输送方向间隔设置在副机架上,由设置在副机架上的软轴成弧机构控制软轴辊道弯曲成弧,所述副机架上靠近加热炉的一端和主机架转动连接,其转动轴线和处于直线状态时的第一根软轴辊道的中心轴线共线,并和加热炉的辊道平行,所述副机架上远离加热炉的一端和设置在主机架上的牵引机构相连。应用旋转式渐变段的钢化成型设备中成型钢化段具有升降功能,以实现和渐变段旋转后的辊道面对接,进而解决玻璃边部难以成型的技术问题。


