授权公布号:CN216386602U
混凝土轨枕静载试验机
有效
申请
2021-11-25
申请公布
1970-01-01
授权
2022-04-26
预估到期
2031-11-25
| 申请号 | CN202122908488.6 |
| 申请日 | 2021-11-25 |
| 授权公布号 | CN216386602U |
| 授权公告日 | 2022-04-26 |
| 分类号 | G01N3/10 |
| 分类 | 测量;测试; |
| 申请人名称 | 济南恒瑞金试验机有限公司 |
| 申请人地址 | 山东省济南市槐荫区经十路28399号善能大厦A座1606A室 |
专利法律状态
2022-04-26
授权
状态信息
授权
摘要
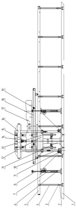
本实用新型提供了一种混凝土轨枕静载试验机,同一台设备上能快速准确的测得各种轨枕的力学性能。一种混凝土轨枕静载试验机,包括主机框架、移动小车、液压加载系统和提升装置,移动小车能够相对主机框架横向滑动,提升装置能够带动轨枕相对主机框架竖直方向移动;提升装置包括提升机构和微调机构,提升机构包括升降调节座、升降轴、钢丝绳、导向轴和升降筒,升降轴设置在升降调节座内,且端部设置升降筒,升降调节座上设有导向槽,钢丝绳一端设置在固定轮上,另一端绕过转向轮Ⅰ及转向轮Ⅱ设置在导向轴上,导向轴设置升降轴下端且横向贯穿升降调节座,导向轴能够导向槽来回移动;微调机构与升降筒联动,用于调节升降筒的往复移动。


