授权公布号:CN216039260U
一种翻转式上风排限位装置
有效
申请
2021-09-24
申请公布
1970-01-01
授权
2022-03-15
预估到期
2031-09-24
| 申请号 | CN202122323589.7 |
| 申请日 | 2021-09-24 |
| 授权公布号 | CN216039260U |
| 授权公告日 | 2022-03-15 |
| 分类号 | C03B27/04 |
| 分类 | 玻璃;矿棉或渣棉; |
| 申请人名称 | 杭州精工机械有限公司 |
| 申请人地址 | 浙江省杭州市余杭区杭州余杭区仁和街道奉运路1号 |
专利法律状态
2022-03-15
授权
状态信息
授权
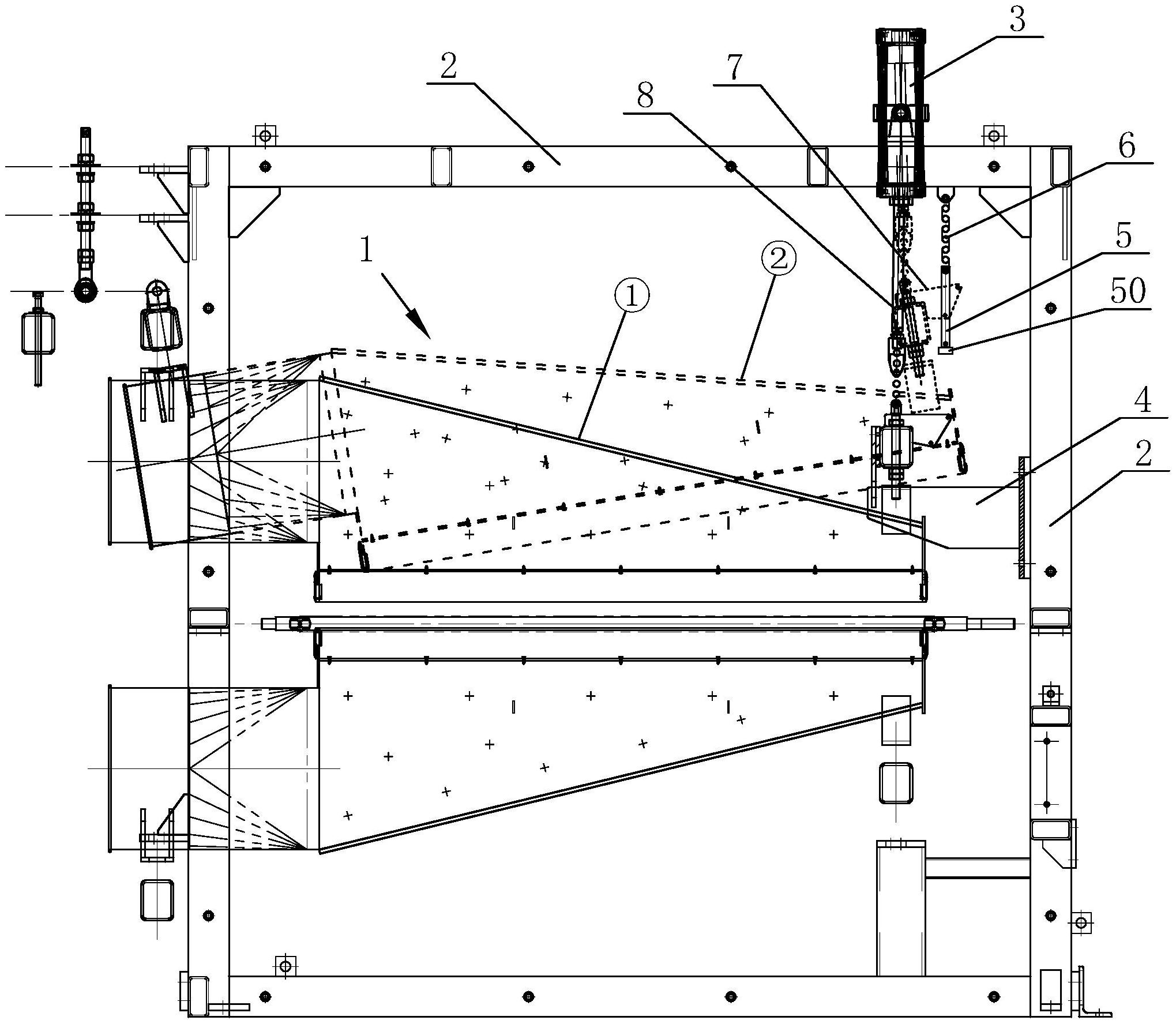
摘要
本实用新型公开了一种翻转式上风排限位装置,可以支撑上风排并使其限制在水平工作位置,对向上翻转打开的上风排进行定位和固定,防止上风排突然落下。本实用新型所公开的翻转式上风排限位装置应用于翻转式的风排装置中,其中的上风排安装于机架上,上风排其中一端与机架旋转连接,另一端由升降气缸带动以进行旋转,所述风险防控结构包括水平托块和定位组件,水平托块固定设于机架上,用于支撑上风排并将其限制在水平工作位置;定位组件用于对向上翻转打开的上风排进行限制固定,包括牙杆和限位结构,牙杆悬吊于机架上,限位结构连接上风排,限位结构设有限位槽,牙杆可在上风排翻转打开至特定角度时进入限位槽中时并卡住。


