授权公布号:CN219061092U
梳齿搬运器微升降装置
有效
申请
2022-12-26
申请公布
1970-01-01
授权
2023-05-23
预估到期
2032-12-26
| 申请号 | CN202223570730.4 |
| 申请日 | 2022-12-26 |
| 授权公布号 | CN219061092U |
| 授权公告日 | 2023-05-23 |
| 分类号 | E04H6/18 |
| 分类 | 建筑物; |
| 申请人名称 | 大洋泊车股份有限公司 |
| 申请人地址 | 山东省潍坊市滨海区央子街道创新大厦 |
专利法律状态
2023-05-23
授权
状态信息
授权
摘要
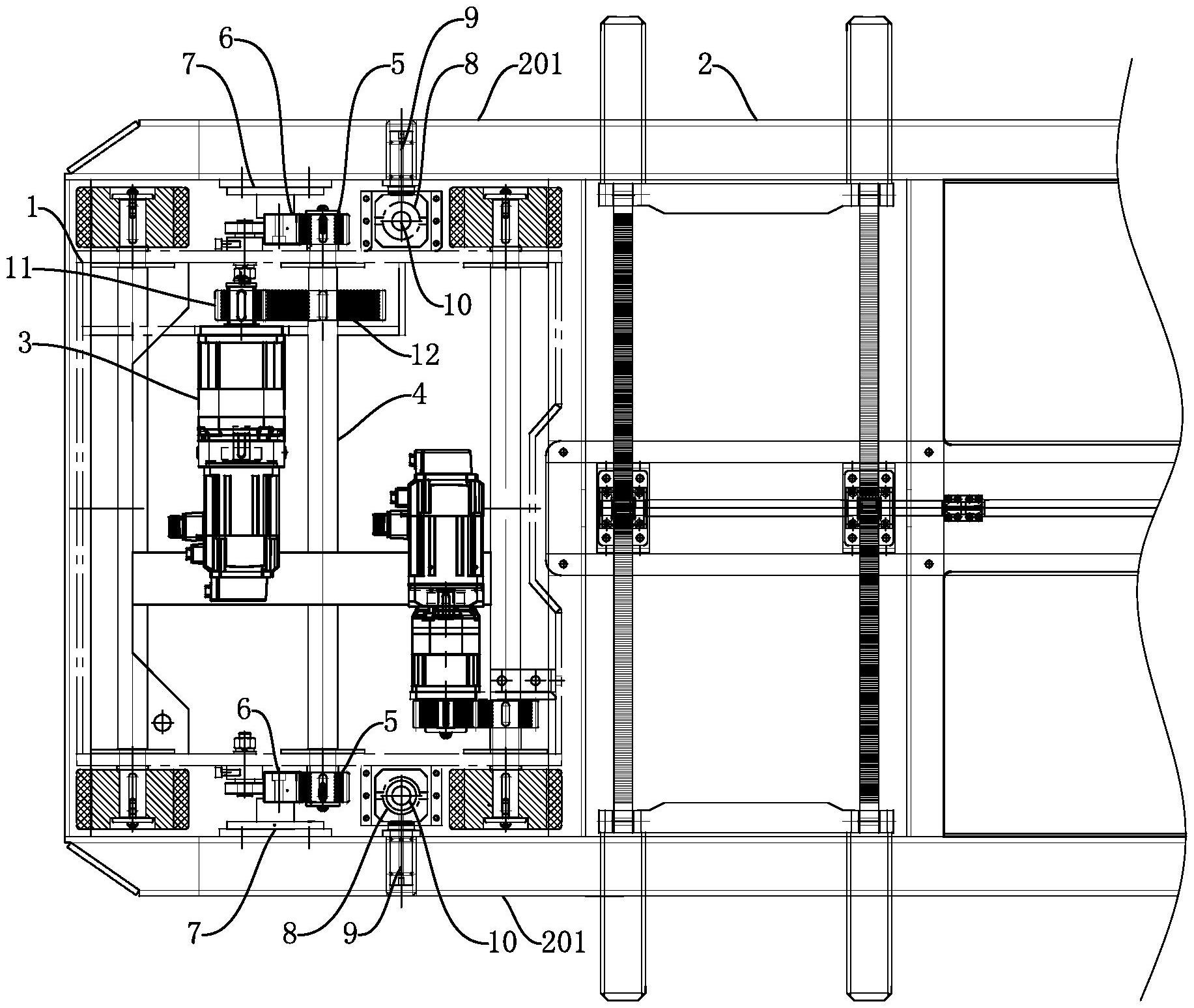
本实用新型公开了一种梳齿搬运器微升降装置,属于立体车库技术领域,包括安装于行走框架上的升降框架,所述行走框架上转动安装有由动力机构驱动的传动轴,所述传动轴的两端固定安装有升降齿轮,所述升降框架上安装有与所述升降齿轮相啮合的升降齿条,所述升降框架的角部安装有导向套,所述行走框架上安装有竖向延伸且与所述导向套相适配的导向柱,所述导向套通过转轴转动安装于所述升降框架的主梁上,所述转轴的轴线水平设置。本实用新型解决了四个行走轮不在同一平面时,导向柱之间产生干涉,导致升降卡阻的技术问题,广泛应用于梳齿车库中。


