授权公布号:CN210427312U
一种三厢式冷热冲击试验箱
有效
申请
2019-07-18
申请公布
1970-01-01
授权
2020-04-28
预估到期
2029-07-18
| 申请号 | CN201921126085.2 |
| 申请日 | 2019-07-18 |
| 授权公布号 | CN210427312U |
| 授权公告日 | 2020-04-28 |
| 分类号 | G01N17/00;G01N25/00;B01L1/00;B01L7/00 |
| 分类 | 测量;测试; |
| 申请人名称 | 无锡伯乐达试验设备有限公司 |
| 申请人地址 | 江苏省无锡市梁溪区江海西路金山北私营工业园B区155-1号 |
专利法律状态
2020-04-28
授权
状态信息
授权
摘要
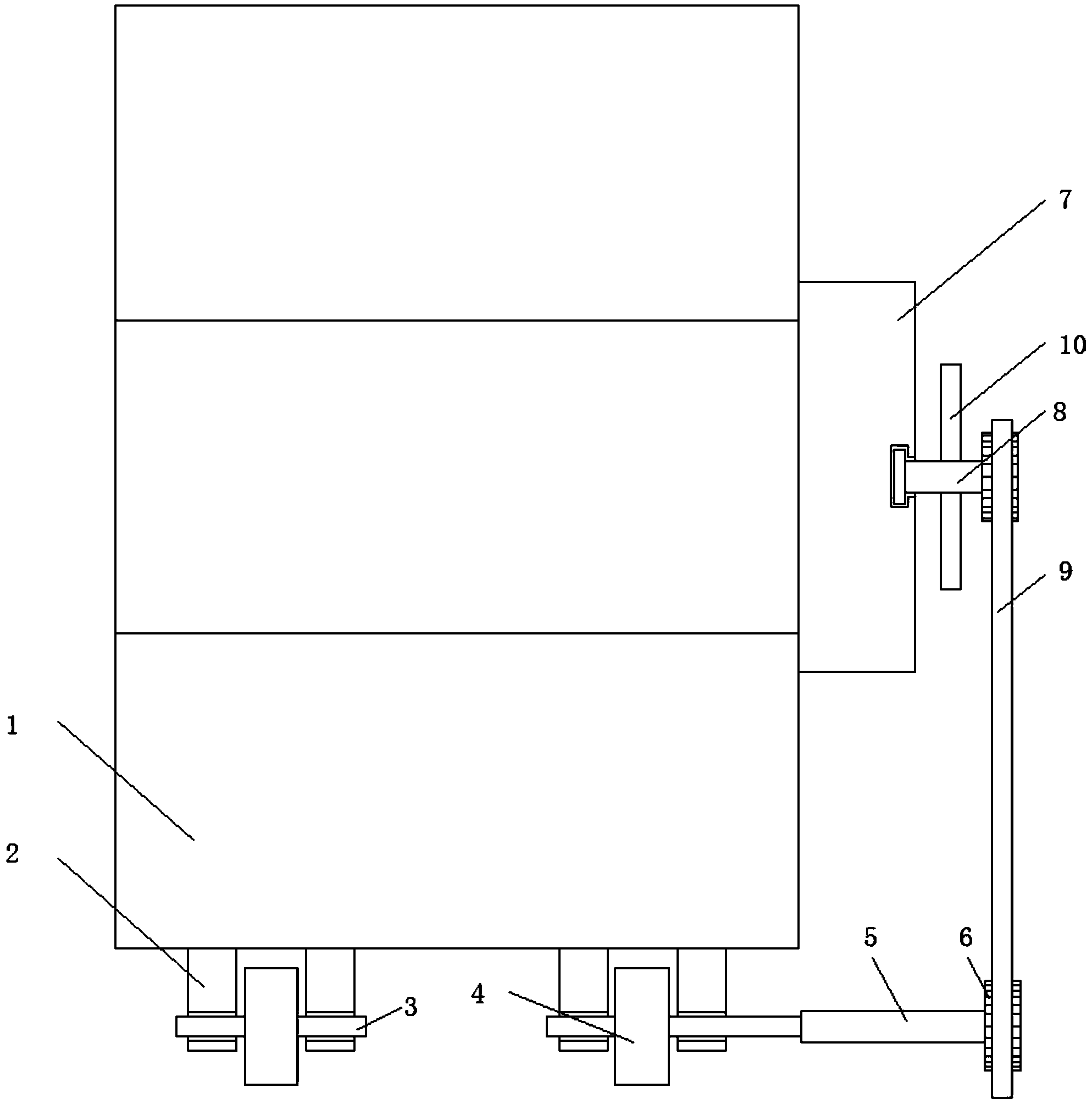
本实用新型涉及冷热冲击箱技术领域,且公开了一种三厢式冷热冲击试验箱,包括箱体,箱体底部的两侧均固定安装有竖板,竖板的内部活动套装有转轴,转轴的两端均延伸至竖板的外部,转轴的外部固定安装有滚轮,转轴的数量为两个,右侧转轴的一侧固定安装有第一圆杆,第一圆杆的外部固定安装有齿轮,箱体的右侧固定安装有储存箱,储存箱的内部活动套装有第二圆杆,第二圆杆的一端延伸至储存箱的内部,齿轮的数量为两个;该三厢式冷热冲击试验箱,移动装置时,滚轮转动最终使得第二圆杆转动,通过第二圆杆的转动带动扇叶转动,从而产生环境空气,环境空气通过通孔进入存储箱的内部,试验时储箱内部的空气抽进箱体内部,从而降低试验成本。


