授权公布号:CN218643447U
一种新型抓具清污装置
有效
申请
2022-11-15
申请公布
1970-01-01
授权
2023-03-17
预估到期
2032-11-15
| 申请号 | CN202223029133.0 |
| 申请日 | 2022-11-15 |
| 授权公布号 | CN218643447U |
| 授权公告日 | 2023-03-17 |
| 分类号 | E02F5/28 |
| 分类 | 水利工程;基础;疏浚; |
| 申请人名称 | 宜兴华都琥珀环保机械制造有限公司 |
| 申请人地址 | 江苏省无锡市宜兴市高塍镇滆湖路8号 |
专利法律状态
2023-03-17
授权
状态信息
授权
摘要
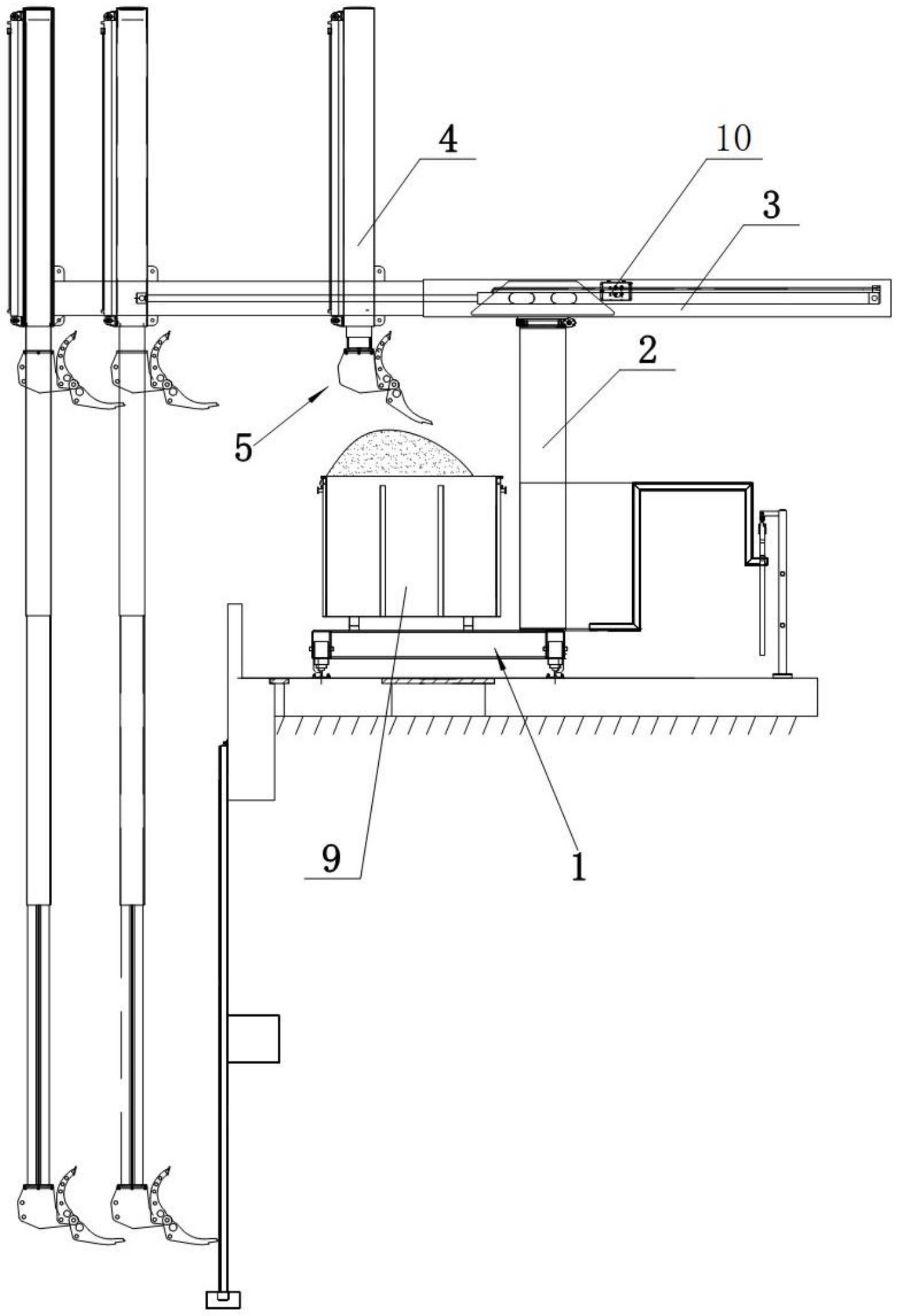
本实用新型提供一种新型抓具清污装置,包括可移动的基座、设置在所述基座上的回转柱、横向设置在所述回转柱上端的第一伸缩臂架、竖向设置在所述第一伸缩臂架一端的第二伸缩臂架、可拆卸设置在所述第二伸缩臂架下端的抓具、设置在所述基座上的控制系统,所述第一伸缩臂架与所述回转柱可拆卸连接,所述第一伸缩臂架与所述第二伸缩臂架可拆卸连接。本实用新型清污装置结构简单,灵活性高,提升了清污效率。


