授权公布号:CN216654059U
PH自动检测跟踪装置
有效
申请
2021-12-14
申请公布
1970-01-01
授权
2022-06-03
预估到期
2031-12-14
| 申请号 | CN202123136590.5 |
| 申请日 | 2021-12-14 |
| 授权公布号 | CN216654059U |
| 授权公告日 | 2022-06-03 |
| 分类号 | B01D53/78;B01D53/34 |
| 分类 | 一般的物理或化学的方法或装置; |
| 申请人名称 | 山东巧媳妇食品集团有限公司 |
| 申请人地址 | 山东省淄博市临淄区齐城农业高新技术开发区宏达路1295号 |
专利法律状态
2022-06-03
授权
状态信息
授权
摘要
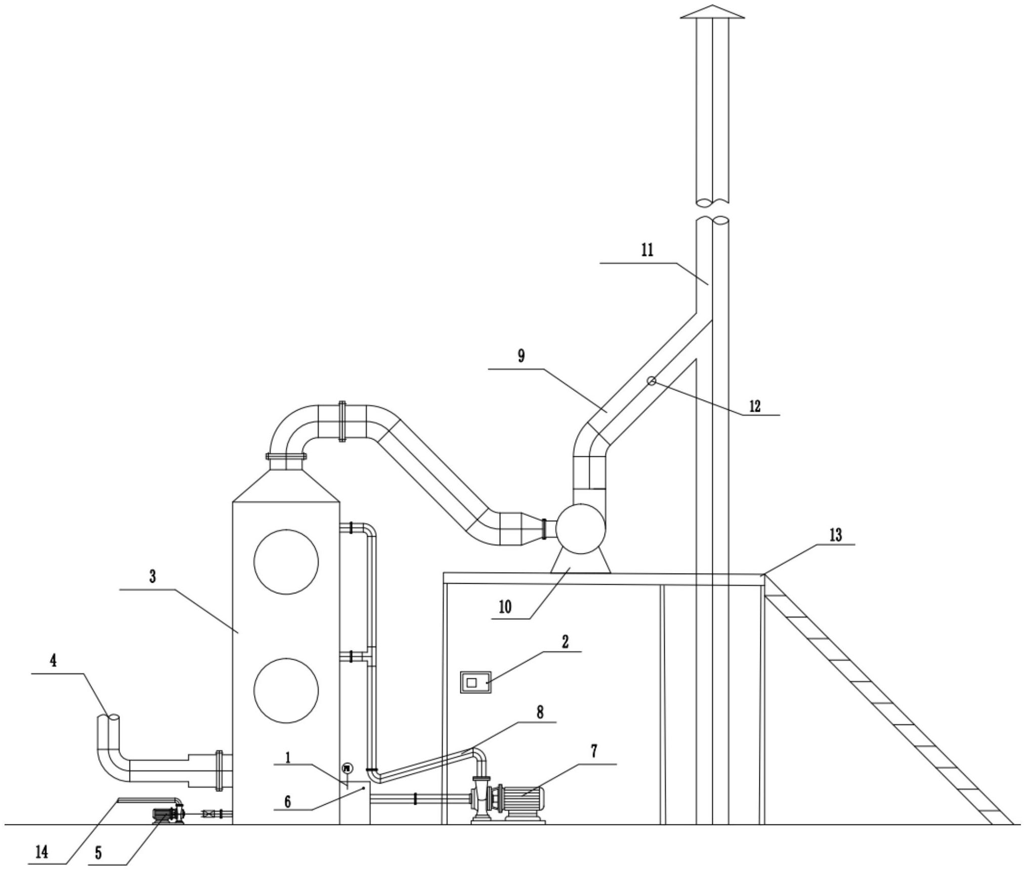
本实用新型涉及一种PH自动检测跟踪装置,属于喷淋塔技术领域;包括PH检测电极和PH控制箱,所述PH检测电极用于检测喷淋塔底部喷淋水的PH,喷淋塔连接有喷淋塔进风管、排污水泵、进水球阀;底部喷淋水的PH高于PH设定值时,排污水泵工作;喷淋水位低于水位设定值时,进水球阀打开;所述PH控制箱连接PH检测电极、排污水泵和进水球阀,用于控制装置运行;自动调整PH和水位,保证喷淋塔的喷淋效果。


