授权公布号:CN210152490U
一种免焊接拼装门框
有效
申请
2019-04-09
申请公布
1970-01-01
授权
2020-03-17
预估到期
2029-04-09
| 申请号 | CN201920468095.8 |
| 申请日 | 2019-04-09 |
| 授权公布号 | CN210152490U |
| 授权公告日 | 2020-03-17 |
| 分类号 | E06B1/52 |
| 分类 | 一般门、窗、百叶窗或卷辊遮帘;梯子; |
| 申请人名称 | 熊熊安防科技有限公司 |
| 申请人地址 | 浙江省金华市武义县桐琴五金机械工业园(武义九龙工具有限公司内4幢第一层) |
专利法律状态
2020-03-17
授权
状态信息
授权
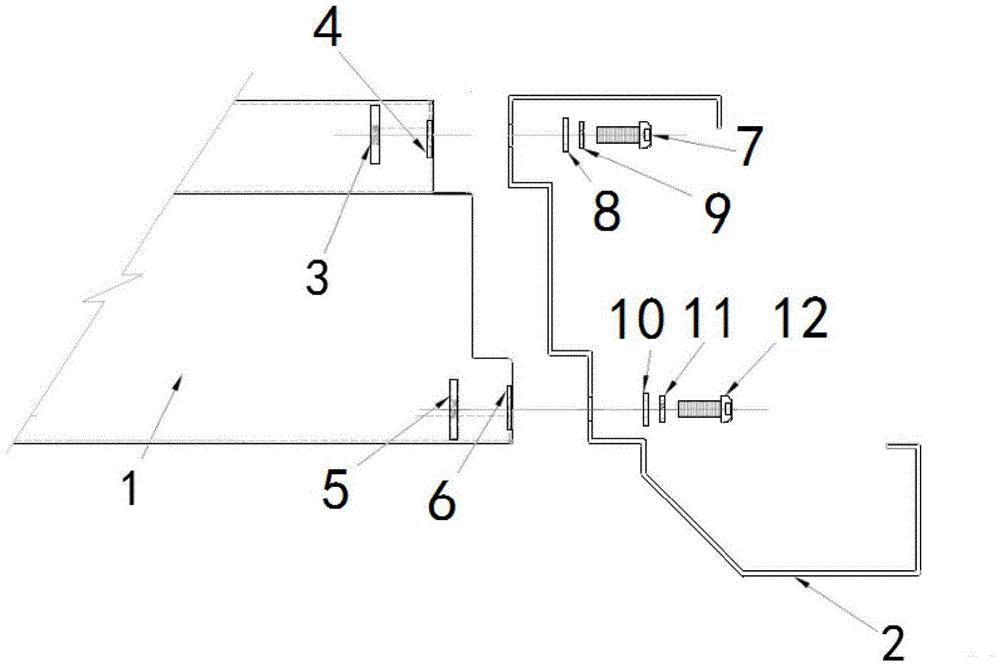
摘要
一种免焊接拼装门框,属于机械及装甲门技术领域。下档与立档通过螺栓装置连接;下档与立档连接位置分别有定位孔和台阶,台阶分别为凸凹结构,相互匹配,定位孔相对匹配连通,定位孔分为上孔及下孔,下档的上孔与立档的上孔中通过螺栓装置连接,第一固定螺丝连接第一防松动垫片及第一垫片后,第一固定螺丝的末端穿过下档的上孔与立档的上孔后,第一固定螺丝与第一定位片和第一固定板连接。本实用新型的优点是门框单独做表面流程,下档不用经过焊接、打磨,不用经过高温表面流程,保持良好的机械性能和物理性能,进而可制作高端装甲门。


