授权公布号:CN217353987U
新型门扇支撑地轴与工业用重型门扇
有效
申请
2021-01-25
申请公布
1970-01-01
授权
2022-09-02
预估到期
2031-01-25
| 申请号 | CN202120207947.5 |
| 申请日 | 2021-01-25 |
| 授权公布号 | CN217353987U |
| 授权公告日 | 2022-09-02 |
| 分类号 | E05D7/00;E05D11/00;E06B3/36 |
| 分类 | 锁;钥匙;门窗零件;保险箱; |
| 申请人名称 | 中拓门业(天津)有限公司 |
| 申请人地址 | 天津市武清区大良镇隆良路10号 |
专利法律状态
2022-09-02
授权
状态信息
授权
摘要
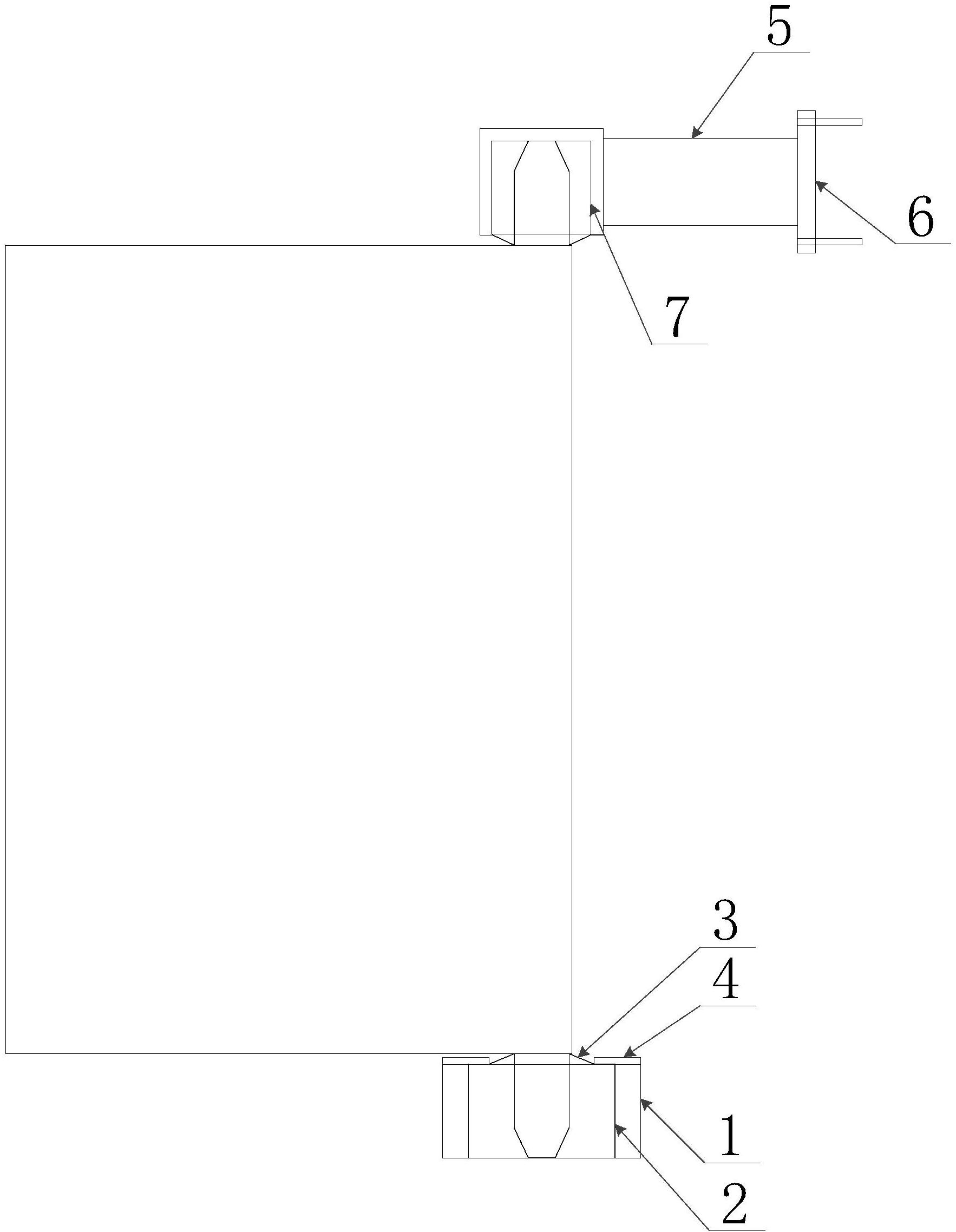
一种新型门扇支撑地轴以及一种工业用重型门,该新型门扇支撑地轴包括有轴承壳、轴承体以及轴承端盖,轴承体为推力自调心滚子轴承,轴承体具有可旋转的安装头,安装头上具有安装孔,安装孔的孔轴线与旋转头的旋转轴线同轴设置,轴承体自安装窗口插装于轴承壳的安装室中。本发明所提供的新型门扇支撑地轴用于从底部对门扇进行支撑,轴承体采用了推力自调心滚子轴承,其既具有较高的承重能力,又具有自调心的特点,使得门扇在自重下调整重心,保证门扇安装的稳定性、牢固性以及运转的平稳性。本发明在投入使用后,能够从底部对重型门扇进行支撑,能够极大程度地降低合页的受力,保证门扇稳定安装,降低甚至是杜绝门扇安装结构损坏问题的出现。


