授权公布号:CN212067238U
一种牙科消毒室
有效
申请
2019-12-13
申请公布
1970-01-01
授权
2020-12-04
预估到期
2029-12-13
| 申请号 | CN201922234787.9 |
| 申请日 | 2019-12-13 |
| 授权公布号 | CN212067238U |
| 授权公告日 | 2020-12-04 |
| 分类号 | A61L2/10;A61L2/26 |
| 分类 | 医学或兽医学;卫生学; |
| 申请人名称 | 泰康拜博医疗集团有限公司 |
| 申请人地址 | 北京市丰台区汉威国际广场3区1号楼2M层 |
专利法律状态
2020-12-04
授权
状态信息
授权
摘要
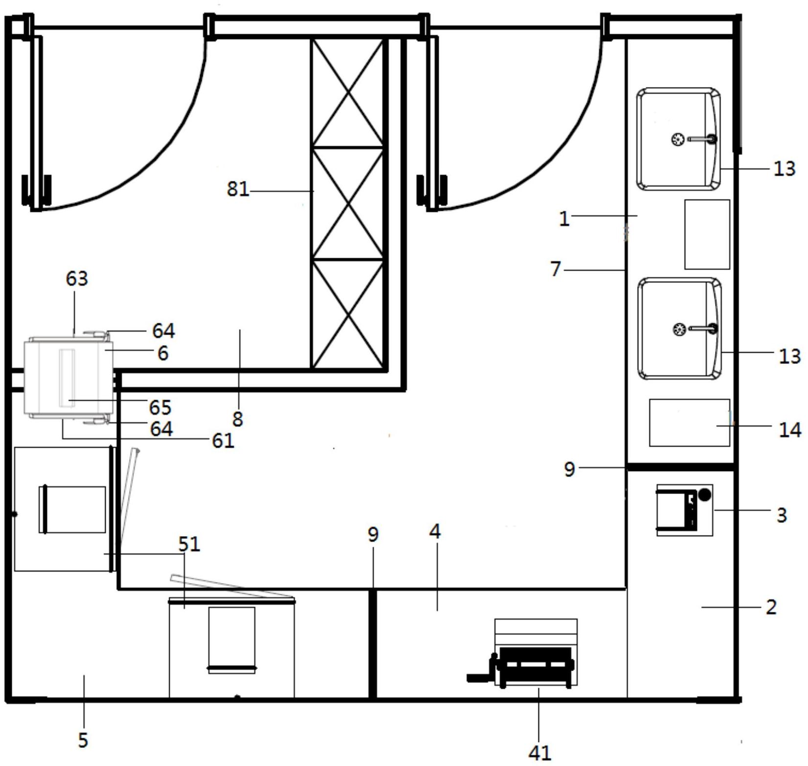
本实用新型公开了一种牙科消毒室,该牙科消毒室包括:清洗区(1)、检查保养区(2)、包装区(4)、灭菌区(5)、传递窗(6)和操作台(7);所述操作台(7)设置在消毒室靠墙一侧,与传递窗(6)相连,所述清洗区(1)、检查保养区(2)、注油机(3)、包装区(4)和灭菌区(5)均依次设置于操作台(7)上,传递窗(6)位于灭菌区(5)与物品存放区(8)之间,连接灭菌区(5)与物品存放区(8)。本实用新型公开的牙科消毒室结构布置设施完善、各分区设置合理、消毒效率高且灭菌效果好,其不仅方便实用,还可满足医生对医疗器械用品消毒程度高的要求。


