授权公布号:CN205402692U
一种掺烧造纸污泥的水煤浆流化床锅炉
有效
申请
2016-01-11
申请公布
1970-01-01
授权
2016-07-27
预估到期
2026-01-11
| 申请号 | CN201620039883.1 |
| 申请日 | 2016-01-11 |
| 授权公布号 | CN205402692U |
| 授权公告日 | 2016-07-27 |
| 分类号 | F23C10/06;F23C10/22 |
| 分类 | 燃烧设备;燃烧方法; |
| 申请人名称 | 浙江双峰锅炉制造有限公司 |
| 申请人地址 | 浙江省武义县振兴路150号 |
专利法律状态
2023-12-05
专利权质押合同登记的生效、变更及注销
状态信息
专利权质押合同登记的生效;IPC(主分类):F23C 10/06;专利号:ZL2016200398831;登记号:Y2023980065841;登记生效日:20231116;出质人:浙江双峰锅炉制造有限公司;质权人:浙江武义农村商业银行股份有限公司;实用新型名称:一种掺烧造纸污泥的水煤浆流化床锅炉;申请日:20160111;授权公告日:20160727
2016-07-27
授权
状态信息
授权
摘要
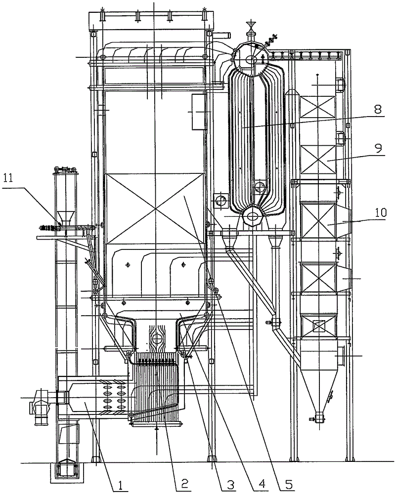
一种掺烧造纸污泥的水煤浆流化床锅炉,包括炉膛、流化床和用以水煤浆给料的水煤浆给料器,炉膛内自下而上设有炉膛密相区和炉膛稀相区,所述流化床布置在炉膛的底部,所述水煤浆给料器位于所述炉膛稀相区的上方,所述水煤浆流化床锅炉还包括热烟气发生器、风室、蜗壳式分离器、用以吸收烟气热量的对流管束、用以回收烟气余热的省煤器、用以冷空气预热的空预器和用以造纸污泥进料的污泥进料装置。本实用新型提供一种可将污泥清洁燃烧的掺烧造纸污泥的水煤浆流化床锅炉。


