授权公布号:CN112268268B
一种医废处理模块化组合式余热装置
有效
申请
2020-09-03
申请公布
2021-01-26
授权
2023-03-24
预估到期
2040-09-03
| 申请号 | CN202010915276.8 |
| 申请日 | 2020-09-03 |
| 申请公布号 | CN112268268A |
| 申请公布日 | 2021-01-26 |
| 授权公布号 | CN112268268B |
| 授权公告日 | 2023-03-24 |
| 分类号 | F22B1/18;F22B31/08;F28D7/16;F28F9/02;F23J15/06;F22B37/10;F23M5/08;F23J3/00;F28F9/26;F28F1/40;F23G5/46 |
| 分类 | 蒸汽的发生; |
| 申请人名称 | 浙江双峰锅炉制造有限公司 |
| 申请人地址 | 浙江省金华市武义县熟溪街道振兴路150号 |
专利法律状态
2023-12-05
专利权质押合同登记的生效、变更及注销
状态信息
专利权质押合同登记的生效;IPC(主分类):F22B1/18;专利号:ZL2020109152768;登记号:Y2023980065841;登记生效日:20231116;出质人:浙江双峰锅炉制造有限公司;质权人:浙江武义农村商业银行股份有限公司;发明名称:一种医废处理模块化组合式余热装置;申请日:20200903;授权公告日:20230324
2023-03-24
授权
状态信息
授权
2021-02-12
实质审查的生效
状态信息
实质审查的生效;IPC(主分类):F22B1/18;申请日:20200903
2021-01-26
公布
状态信息
公布
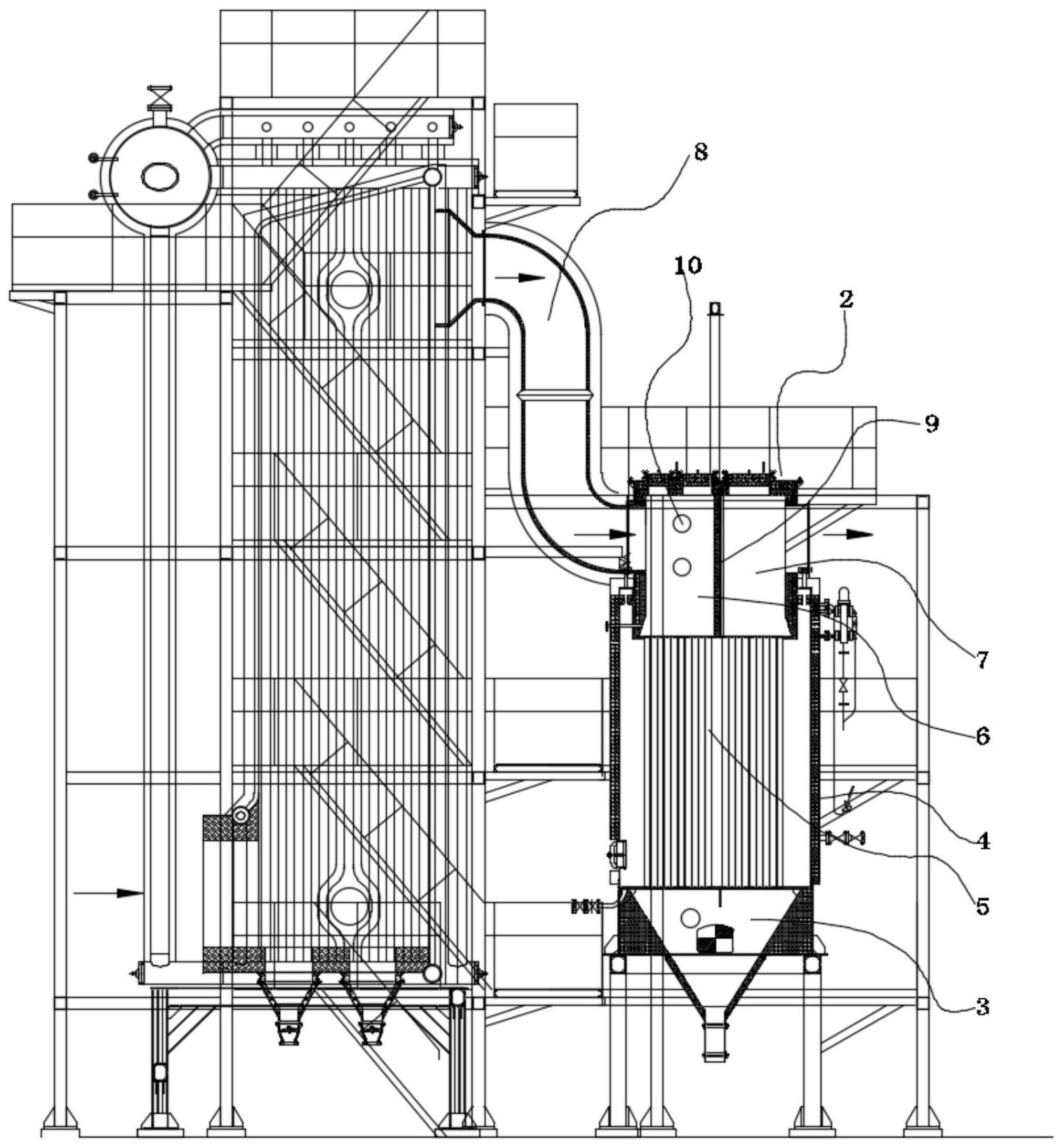
摘要
本发明属于医疗垃圾处理设备技术领域,具体涉及一种医废处理模块化组合式余热装置,包括锅炉与干式急冷器;锅炉包括炉膛;干式急冷器包括上烟箱、下烟箱以及壳体;壳体的两端分别与上烟箱、下烟箱连接;所述壳体内设有数个烟管,烟管内部流通烟气,烟管外部与壳体之间流通冷却介质;所述壳体底部设有冷却介质进口,顶部设有冷却介质出口;上烟箱设有进烟区和排烟区;进烟区通过一部分烟管与下烟箱连通,下烟箱通过另一部分烟管与排烟区连通;所述进烟区设有进烟口,所述排烟区设有排烟口;炉膛出口与进烟口之间连接有烟道。本发明采用锅炉与干式急冷器结合能够最大限度地降低烟气中的有害物质。


