授权公布号:CN213573157U
一种裂缝灌注或湿粘钢加固用的灌浆装置
有效
申请
2020-10-21
申请公布
1970-01-01
授权
2021-06-29
预估到期
2030-10-21
| 申请号 | CN202022354043.3 |
| 申请日 | 2020-10-21 |
| 授权公布号 | CN213573157U |
| 授权公告日 | 2021-06-29 |
| 分类号 | E04G23/02 |
| 分类 | 建筑物; |
| 申请人名称 | 武汉长江加固技术有限公司 |
| 申请人地址 | 湖北省武汉市洪山区珞狮北路工农湾樱花大厦A座16层 |
专利法律状态
2021-06-29
授权
状态信息
授权
摘要
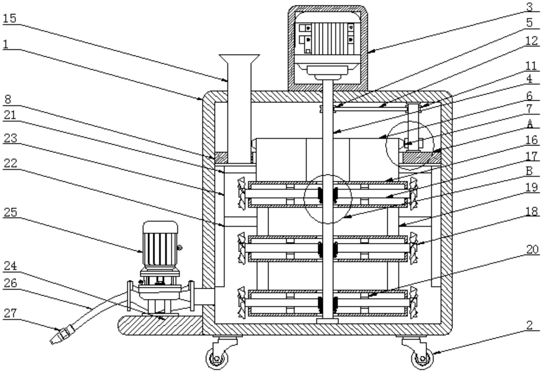
本实用新型公开了一种裂缝灌注或湿粘钢加固用的灌浆装置,其技术方案是:包括壳体,所述壳体内部设有调节机构,所述调节机构包括电机,所述电机设于壳体顶部,所述电机输出轴固定连接有第一转动杆,一种裂缝灌注或湿粘钢加固用的灌浆装置有益效果是:本实用新型通过齿轮带动齿条转动,使得套筒带动多个空心管转动,又通过第一转动杆带动多个第一锥齿轮转动,使得第二锥齿轮带动第三转动杆转动,从而使得多个搅拌叶同时转动,从而使得壳体内部的灌浆得到充分地搅拌,避免灌浆在壳体内部凝固,无法从出料头喷出,从而避免了灌浆的浪费,充分地搅拌保证了灌浆的流动性,提高了灌浆的质量。


