授权公布号:CN215725267U
一种用于冷却塔的防结冰堵塞系统
有效
申请
2021-08-09
申请公布
1970-01-01
授权
2022-02-01
预估到期
2031-08-09
| 申请号 | CN202121840571.8 |
| 申请日 | 2021-08-09 |
| 授权公布号 | CN215725267U |
| 授权公告日 | 2022-02-01 |
| 分类号 | F28C1/16;F28F27/00 |
| 分类 | 一般热交换; |
| 申请人名称 | 大连斯频德环境设备有限公司 |
| 申请人地址 | 辽宁省大连市经济技术开发区东北四街8号 |
专利法律状态
2022-02-01
授权
状态信息
授权
摘要
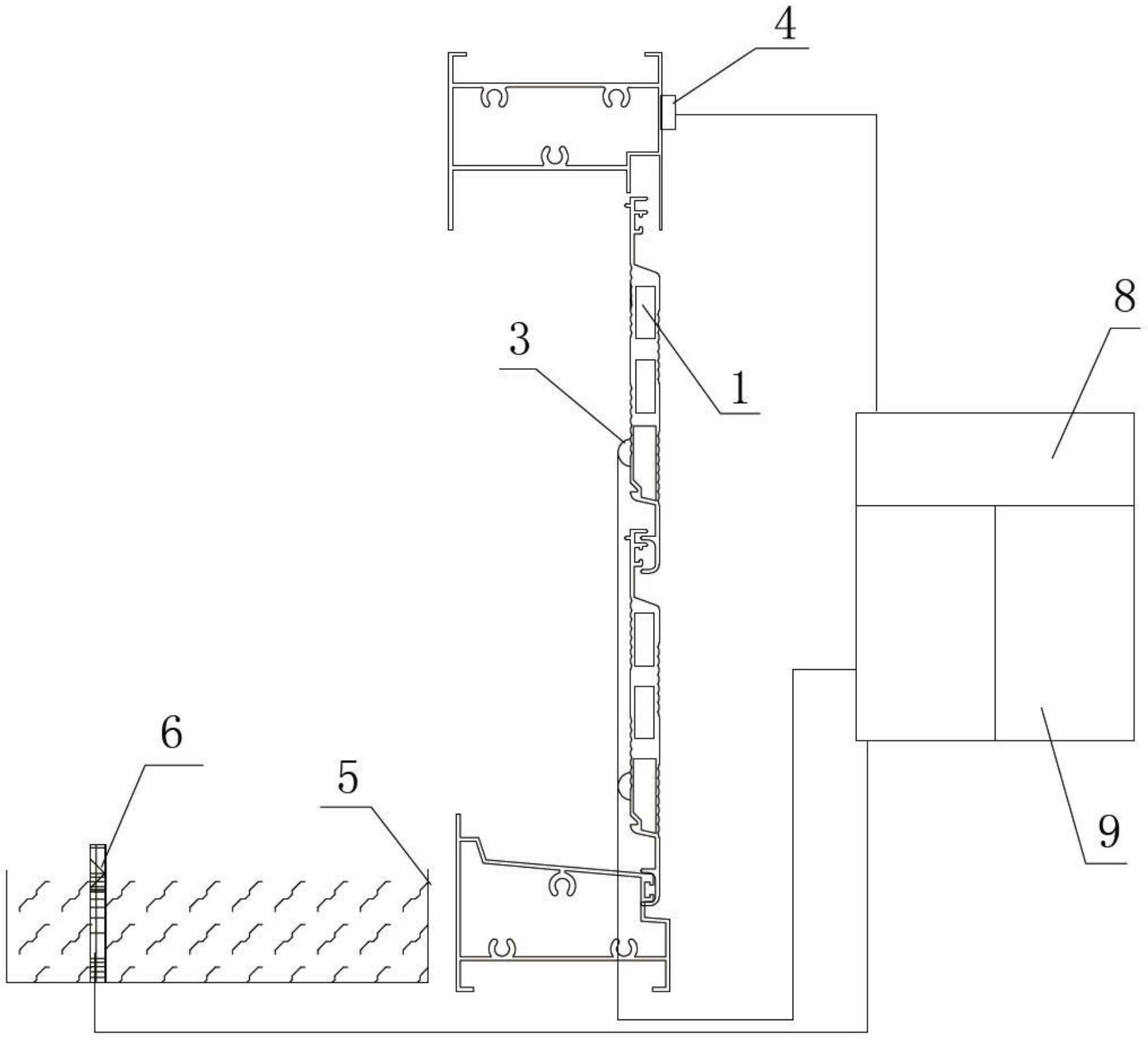
本实用新型公开了一种用于冷却塔的防结冰堵塞系统,属于冷却塔技术领域。包括设置于冷却塔进风口处的百叶窗,转轴贯穿并转动连接百叶窗两侧的窗框,百叶固定在所述转轴上,转轴与连杆连接,连杆连接驱动杆,所述驱动杆连接驱动电机,所述百叶上设有电加热体以及温度传感器a,冷却塔底部的水箱内设有温度传感器b,驱动电机、电加热体、温度传感器a以及温度传感器b均与控制系统连接。本实用新型的有益效果是:对冷却塔塔内水温、风道环境温度、雨雪及极寒天气监测,通过智能控制百叶开关和辅助加热功能,起到对冷却塔的抗冻保温作用,提高冷却塔稳定的运行自我调节能力。


