授权公布号:CN212658049U
一种合金均质炉
有效
申请
2020-02-26
申请公布
1970-01-01
授权
2021-03-05
预估到期
2030-02-26
| 申请号 | CN202020210857.7 |
| 申请日 | 2020-02-26 |
| 授权公布号 | CN212658049U |
| 授权公告日 | 2021-03-05 |
| 分类号 | F27D9/00;F27B14/08;F27D1/18;F27B14/06;F27B14/14 |
| 分类 | 炉;窑;烘烤炉;蒸馏炉〔4〕; |
| 申请人名称 | 江苏海宝电池科技有限公司 |
| 申请人地址 | 江苏省南通市如东经济开发区新区鸭绿江路1号 |
专利法律状态
2021-03-05
授权
状态信息
授权
摘要
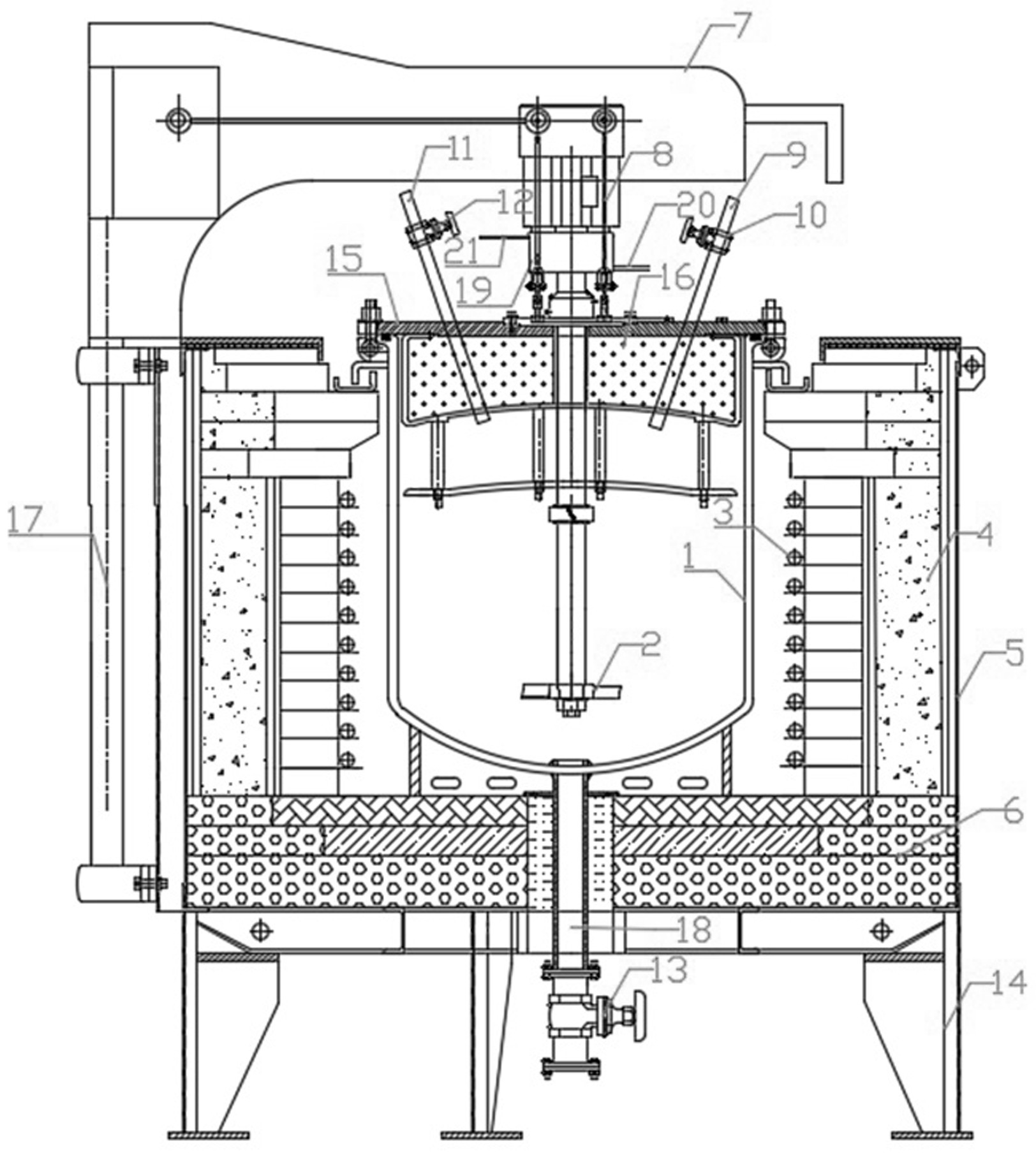
本实用新型公开一种合金均质炉,主要包括主体部分、上盖总成、炉盖升降系统,所述炉盖升降系统可对上盖总成进行升降和旋转移动,所述上盖总成与主体部分配合严实,所述主体部分设置有电磁加热线圈对均质炉进行加热。本实用新型采用电磁加热,加热速度快、最高可承受1500℃;本实用新型配有保温棉、保温砖和隔热棉,保温效果好、安全性能高;本实用新型可通入惰性气体实现隔氧配制合金,配制合金均匀性好,操作简单。


