授权公布号:CN205840240U
一种高架地板的板体
有效
申请
2016-07-22
申请公布
1970-01-01
授权
2016-12-28
预估到期
2026-07-22
| 申请号 | CN201620774526.X |
| 申请日 | 2016-07-22 |
| 授权公布号 | CN205840240U |
| 授权公告日 | 2016-12-28 |
| 分类号 | E04F15/024 |
| 分类 | 建筑物; |
| 申请人名称 | 常州市华一防静电活动地板有限公司 |
| 申请人地址 | 江苏省常州市武进区横林镇崔桥鸿丰路1号 |
专利法律状态
2016-12-28
授权
状态信息
授权
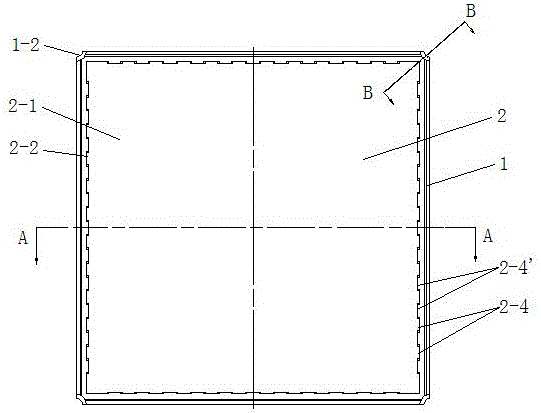
摘要
一种高架地板的板体,具有面板、底板和芯板,所述芯板位于面板和底板组成的空腔中,底板具有底面板、壁面和端口外沿,面板的外沿具有包边,所述包边包覆在底板的端口外沿上,所述面板的四个角上均具有弧形豁口或倒角,且面板的弧形豁口上沿处具有弧形豁槽或面板的倒角上沿处具有弧形豁槽,所述弧形豁槽具有弧形面和台阶,所述底板四周的壁面具有条形凸筋和条形凹槽,所述条形凸筋和条形凹槽的方向均为一端与底面板相接另一端与端口外沿相接。本实用新型中包边和条形凸筋大大增加了板体四周的强度,即使长时间使用板体四周也不易变形损坏,所述面板的四个角上均具有弧形豁口或倒角,面板可以用螺丝和垫片相互固定,这样铺设简单,拆卸维修方便。


