授权公布号:CN220434524U
铁路车辆关门压杆装置
有效
申请
2023-05-16
申请公布
1970-01-01
授权
2024-02-02
预估到期
2033-05-16
| 申请号 | CN202321179003.7 |
| 申请日 | 2023-05-16 |
| 授权公布号 | CN220434524U |
| 授权公告日 | 2024-02-02 |
| 分类号 | E05F11/54 |
| 分类 | 锁;钥匙;门窗零件;保险箱; |
| 申请人名称 | 广西柳州钢铁集团有限公司 |
| 申请人地址 | 广西壮族自治区柳州市北雀路117号 |
专利法律状态
2024-02-02
授权
状态信息
授权
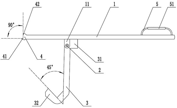
摘要
本实用新型公开了一种铁路车辆关门压杆装置,属于铁路车辆技术领域,包括主杆、销轴和支杆,所述主杆的一端设有卡座,所述卡座设有支撑部和顶压部,所述支撑部和所述顶压部用于顶住搭扣板,所述主杆的中部设有铰座,所述支杆的一端设有支座,所述支座与所述铰座之间通过所述销轴相铰接,所述支杆的另一端设有钩部,所述钩部用于勾住车体底部;本实用新型提供一种铁路车辆关门压杆装置,能够快捷省力的关闭火车小门。


