授权公布号:CN107599187B
一种板材的铣边结构
有效
申请
2016-07-11
申请公布
2018-01-19
授权
2023-12-12
预估到期
2036-07-11
| 申请号 | CN201610543501.3 |
| 申请日 | 2016-07-11 |
| 申请公布号 | CN107599187A |
| 申请公布日 | 2018-01-19 |
| 授权公布号 | CN107599187B |
| 授权公告日 | 2023-12-12 |
| 分类号 | B28D1/18;B28D7/00;B28D7/02;B28D7/04 |
| 分类 | 加工水泥、黏土或石料; |
| 申请人名称 | 北新集团建材股份有限公司 |
| 申请人地址 | 北京市昌平区回龙观西大街118号龙冠置业大厦 |
专利法律状态
2023-12-12
授权
状态信息
授权
2018-01-19
公布
状态信息
公布
摘要
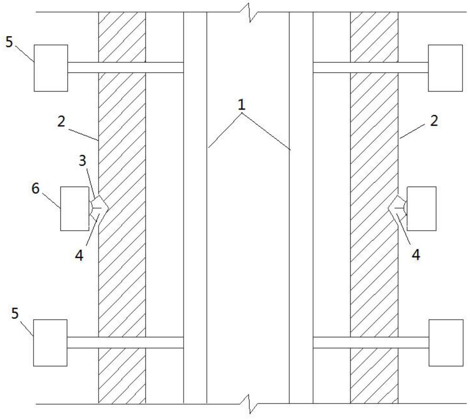
一种板材的铣边结构,包括板材传送装置以及对称设置在所述板材传送装置两侧的工作台,所述板材传送装置包括相互平行排布的上传送皮带以及下传送皮带,所述上传送皮带与下传送皮带之间设有容纳板材传送的空隙,所述工作台的外边沿开设有铣边孔,所述铣边孔内安装有铣边刀,所述铣边刀具有呈L状的刀齿,所述刀齿由所述铣边孔内伸出。该板材的铣边结构将板材的装饰面朝下设置进行加工,保证了装饰面到槽底边高度的精确度。


